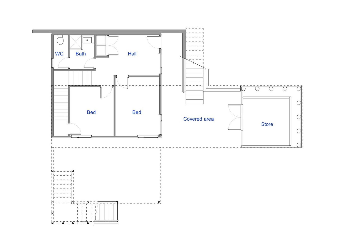
18/20 Images A Playful Two-Storey Cabin for a Family in Waikanae, New Zealand by Parsonson Architects (18)