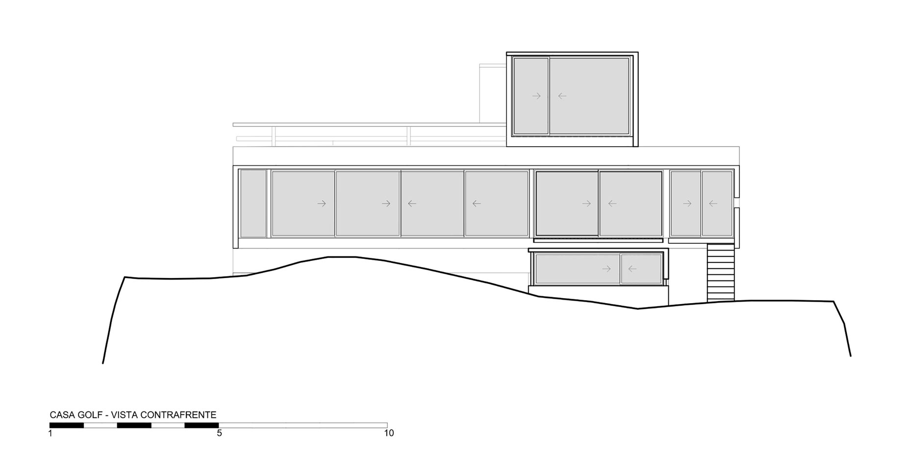
25/27 Images A Contemporary Concrete Home Made of Three Stacked Volumes in La Costa Partido by Luciano Kruk Arquitectos (25)