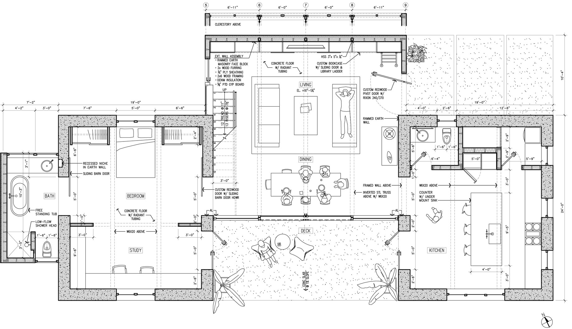
10/13 Images A Modern Rammed-Earth Home with Warmth and Natural Elegance in Mountain View by Atelier Hsu (10)