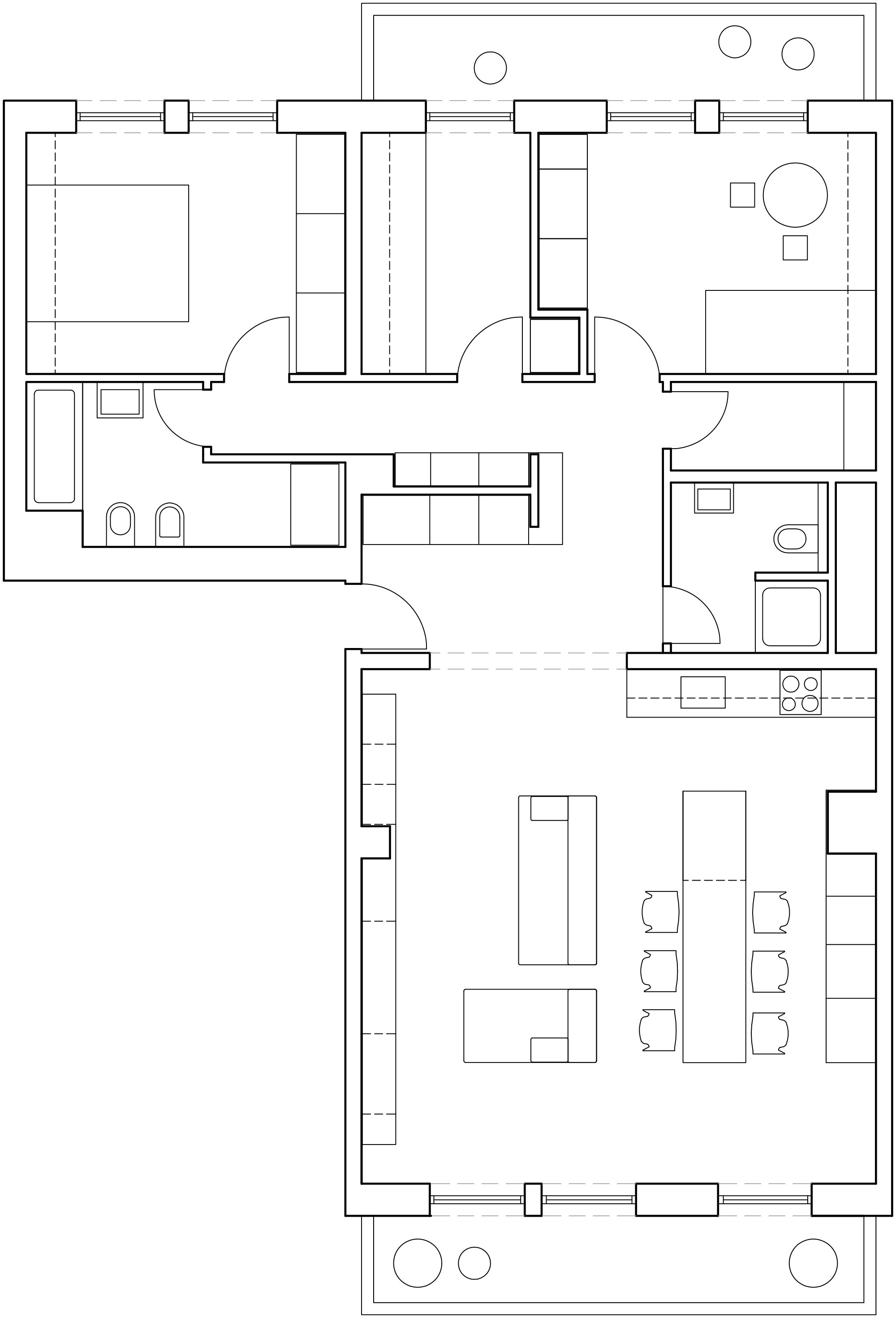
17/17 Images An Elegant L-Shaped Apartment with Walls of Modular Shelving and Storage in Ljubljana by Lidija Dragisic (17)