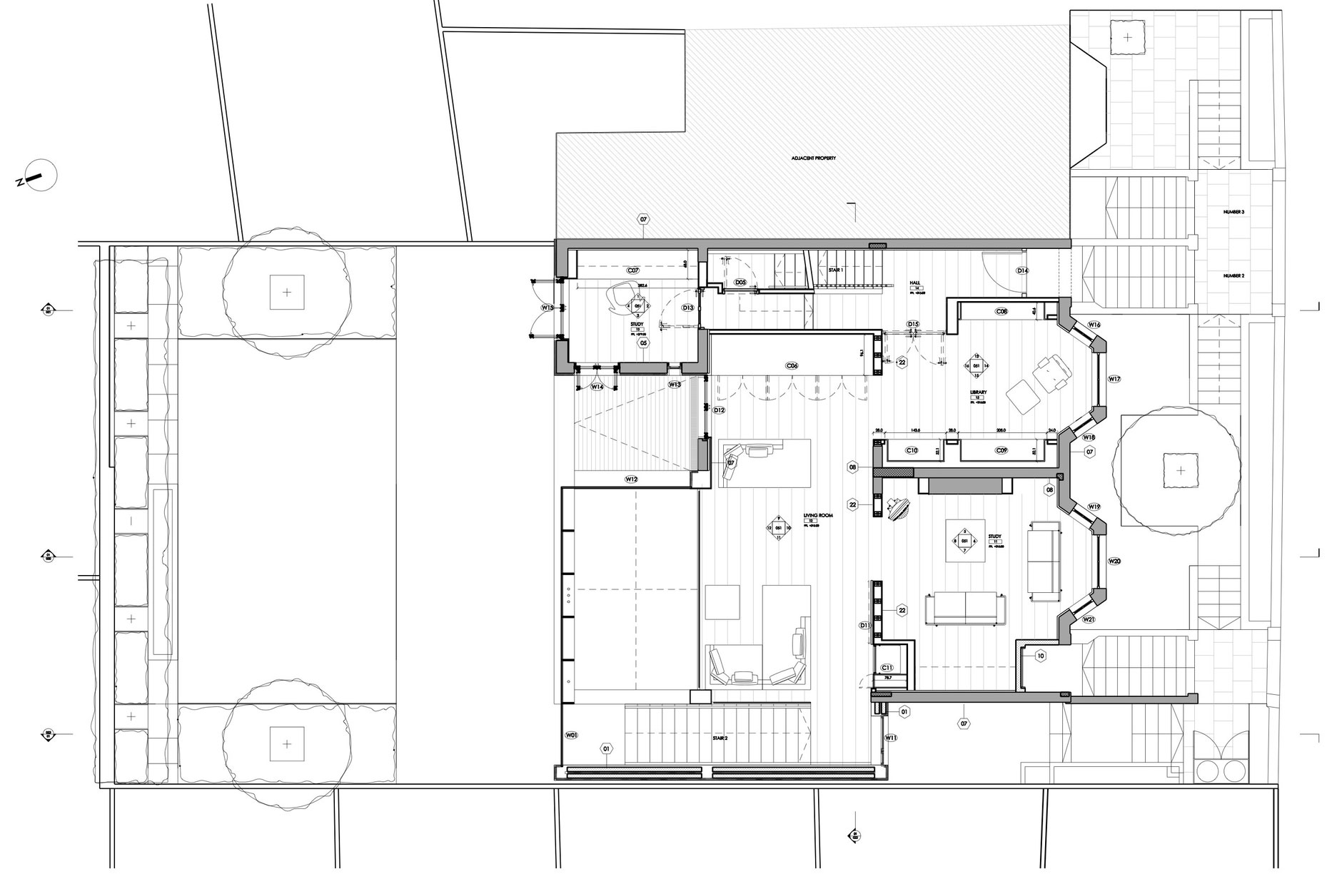
14/15 Images A Classic Victorian Terraces Transformed into an Outstanding Modern Family Home in London by DOS Architects (14)