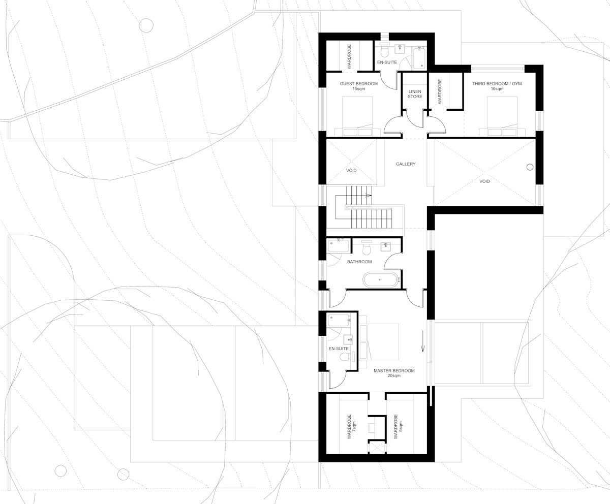
17/20 Images A Contemporary Family Home with Strong and Vibrant Interiors in Hertfordshire by Stephen Davy Peter Smith Architects (17)