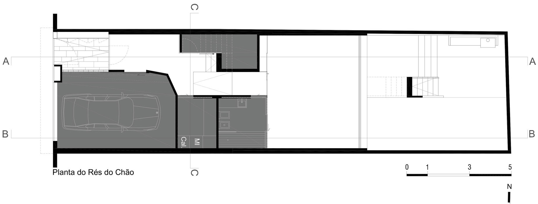
16/22 Images A Spectacular Contemporary Home With Magnificent Views in Gafanha da Encarnação by RVdM Arquitectos (16)