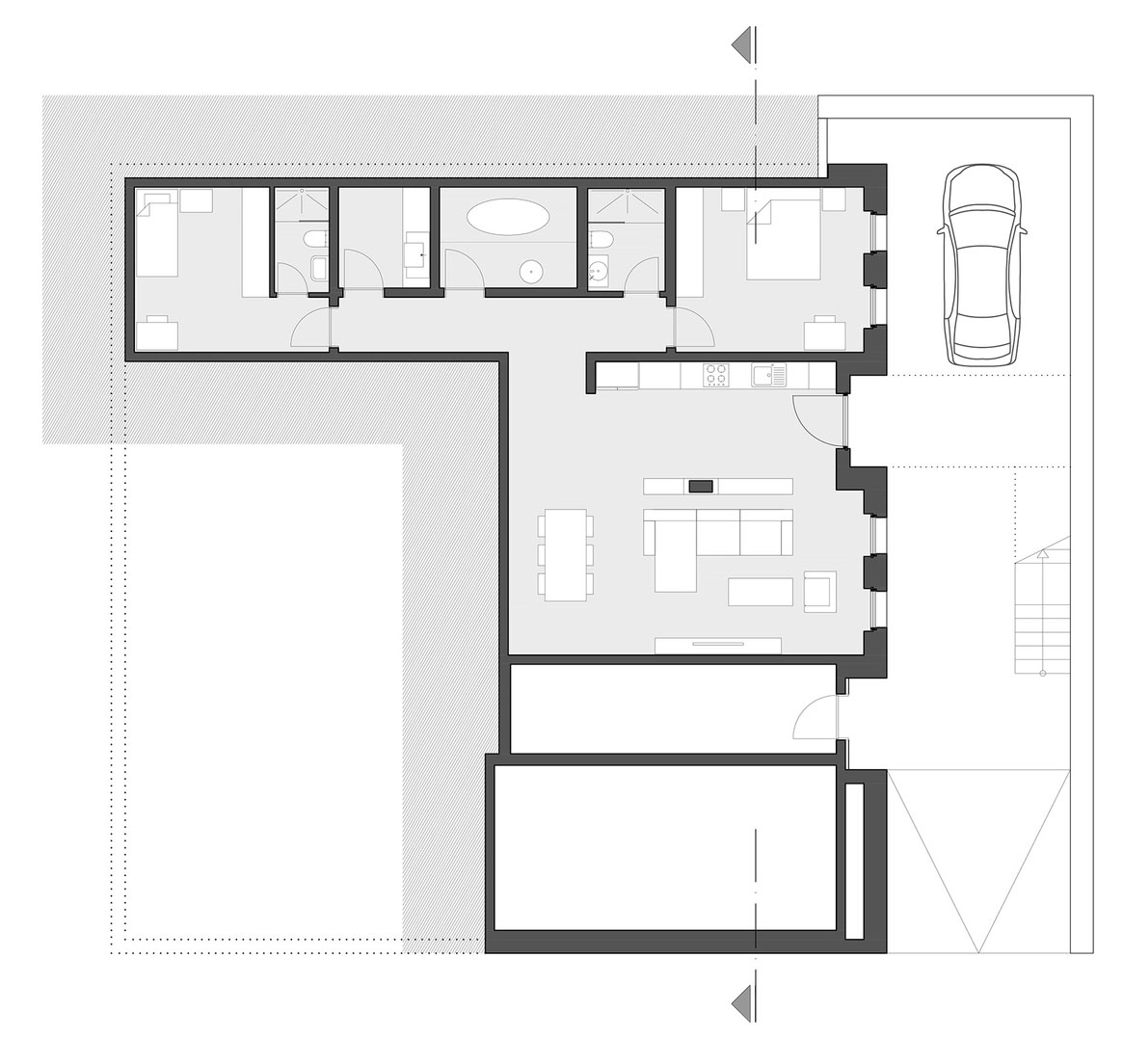
17/23 Images A Stunning Rustic Home with a Rough and Warm Interior in Turkey by Cirakoglu Architects (17)