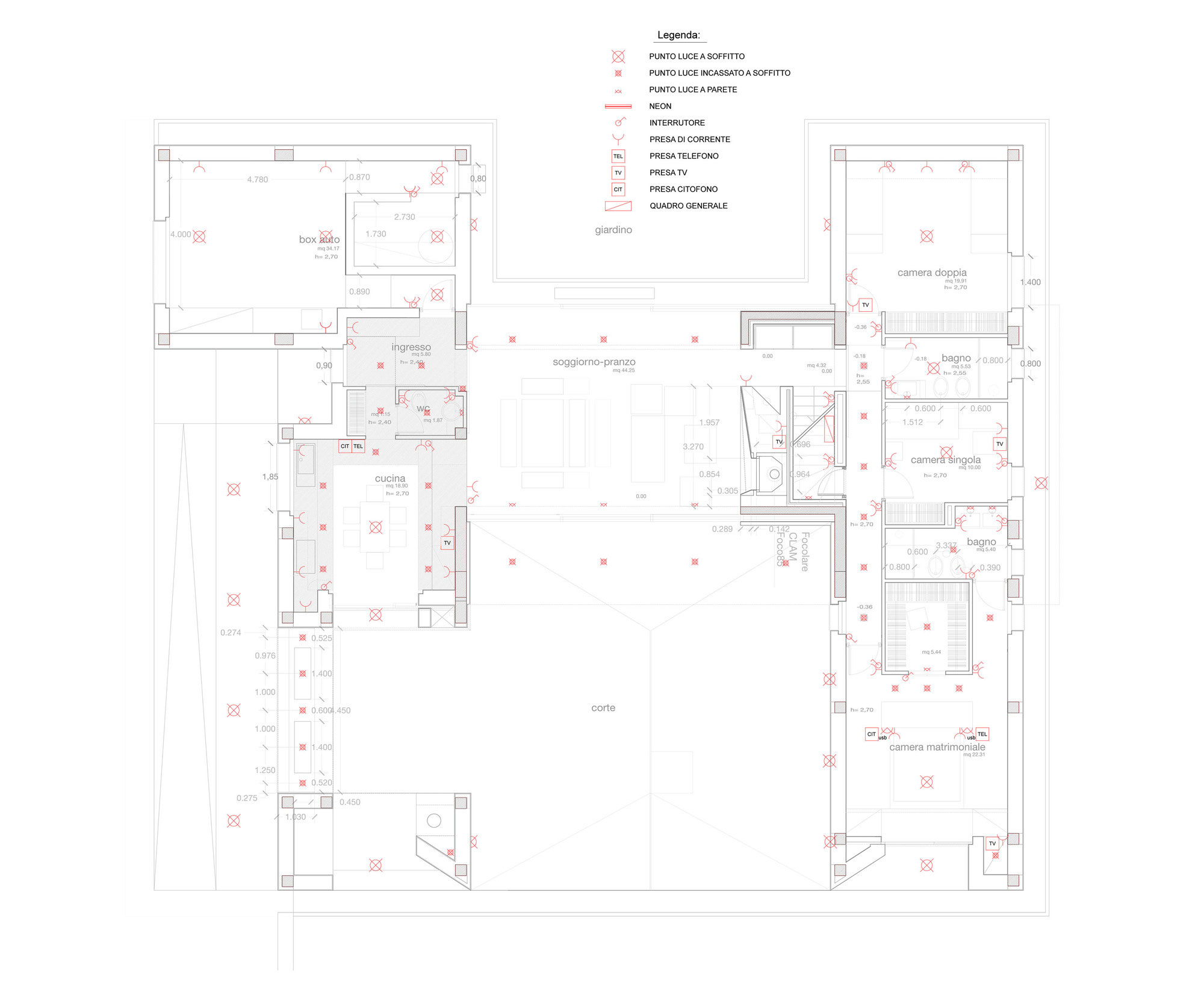
24/36 Images A Spacious and Bright Home Surrounded by a Rocky Landscape in Syracuse, Italy by Fabrizio Foti architetto (24)