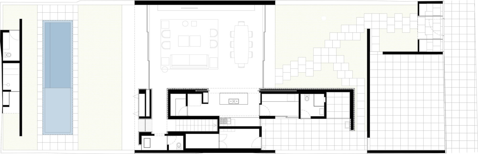
39/40 Images A Stylish and Vibrant Home with Simple and Practical Interiors in São Paulo by Felipe Hess (39)