Family Retreat by Salmela Architect
This secluded retreat is on a West facing shore of Lake Superior. At the end of a short forested driveway a storage building and woodshed structure form a gateway which marks entry to the site. Proceeding to the cabin a long South facing deck supplemented with fireplace provides a warm sunny space for the often cool days on the coldest of Great Lakes. A cantilevered screen porch above creates a shaded area for the relatively few hot days and acts as a rain/snow cover for the main entrance.
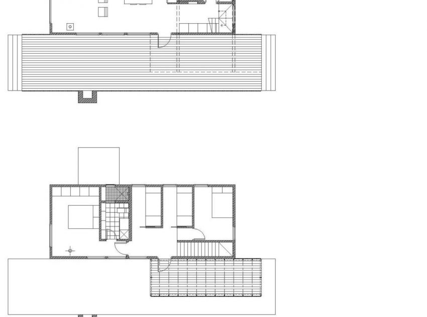
The 16×40 foot cabin interior is paneled in clear basswood and directs views toward the lake and surrounding forest. To the North an additional outdoor breakfast deck overlooks a field of the native grasses and wild flowers. The upper floor consists of two bunk rooms, one guest room, a master suite and screen porch for summer sleeping. The V-shaped roof of the cabin directs rain water away from the side decks as well as away from the building ends.
Hidden in the woods off the pathway to the lakeshore is a sauna which repeats the function of the V-shaped roof. The use of black paper-resin composite siding along with aging cedar elements on all buildings provide a nearly maintenance-free exterior allowing more care-free days at the retreat. The land which had previously been used as the family campsite now a series of structures that provides every opportunity to bask in the outdoors.
Photos by: Salmela Architect & Paul Crosby
View more: A Contemporary Mountainside Home with Spectacular Views in Nuevo Leon, Mexico
Related: A Playful and Modern Vertical Home in Toshima, Japan
Here: A Stunning and Elegant Home Built on a Slope Overlooks Beautiful Mountains of Liechtenstein
Read also: A Contemporary Zigzag-Shaped House Surrounded by Vineyards and Olive Trees in Gateira, Portugal
Next: A Cozy, Comfortable and Elegant Home with Wonderful Views in Connecticut
Check out: A Futuristic and Unique Modern Home with Stylish Interiors in Iceland
Read more: An Elegant Contemporary House by the River in Yekaterinburg, Russia
See also: A Contemporary Home with Combination of Concrete and Glass Materials on Herne Bay Road












