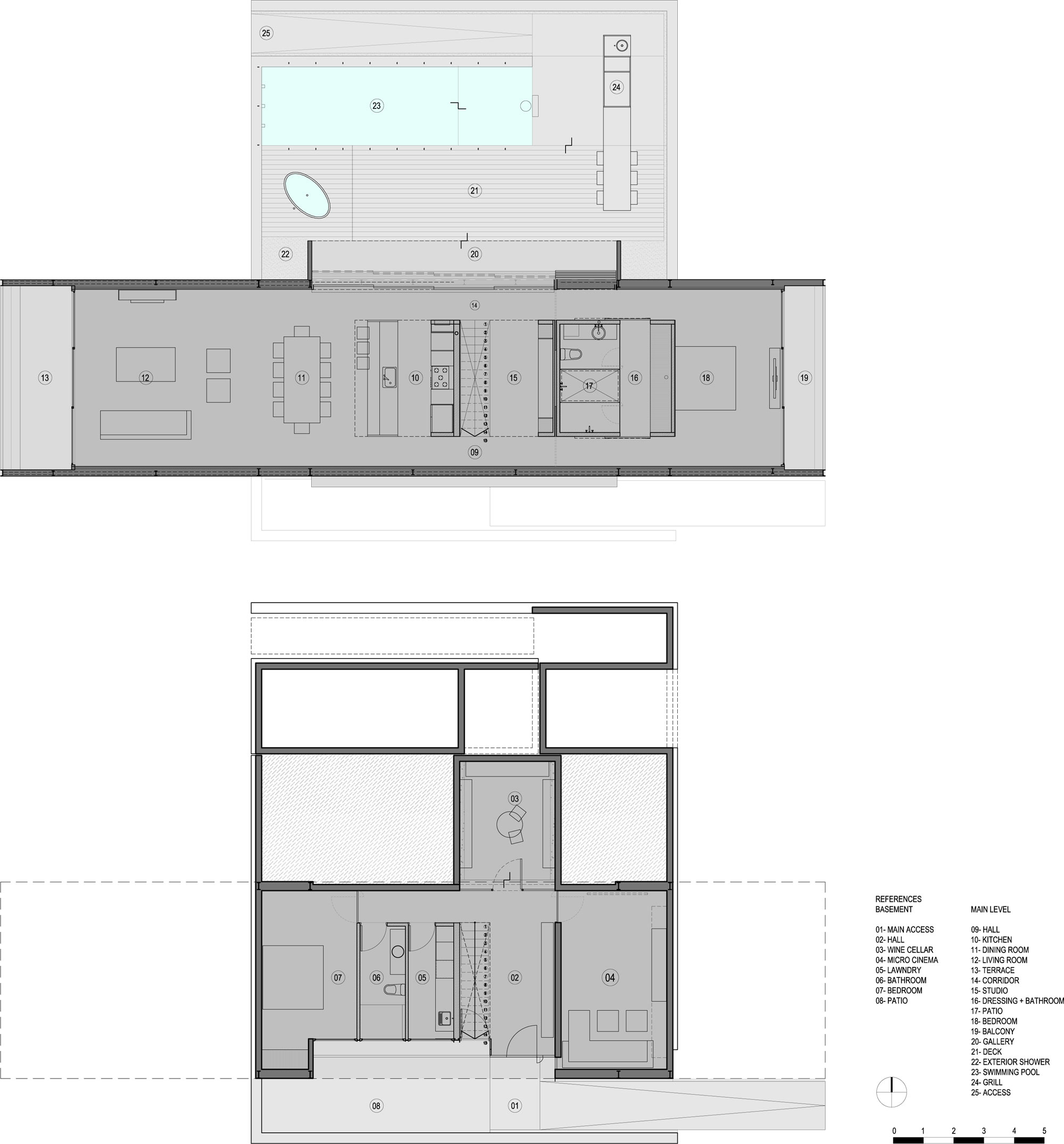
18/20 Images A Contemporary Home Enfolded by Steel, Concrete and Wood Elements in Tunuyán by A4estudio (18)