Archives
November 2022
October 2022
September 2022
August 2022
October 2020
September 2020
August 2020
July 2020
June 2020
May 2020
Categories
Home
Dream Homes
Interior Design
House
Apartments
Public Space
Resort Residence
Selected Work
Dream Homes
Interior Design
Modern Interior Design
Contemporary Interior Design
Futuristic Interior Design
Luxury Interior Design
Industrial Interior Design
Transitional Interior Design
Minimalist Interior Design
Scandinavian Interior Design
Mid-Century Interior Design
House
Modern House
Contemporary House
Concrete House
Cliffside House
Beach House
Waterfront House
Mid-Century House
Cantilever House
Shipping Container House
Desert House
Church Conversion
Scandinavian House
Apartments
Small Apartment
Modern Apartment
Contemporary Apartment
Duplex Apartment
Penthouse
Loft
Warehouse Conversion
Selected Work
More
Living Room
Kitchen
Dining Room
Bedroom
Bathroom
Kids Room
Study Room
Concrete Walls
Glass Walls
Brick Walls
Stone Walls
Staircase
Lighting
House Plans
Landscaping
Swimming Pool
Terrace
Submit Work
Home Design
Log in
Search for:
Home
»
House
»
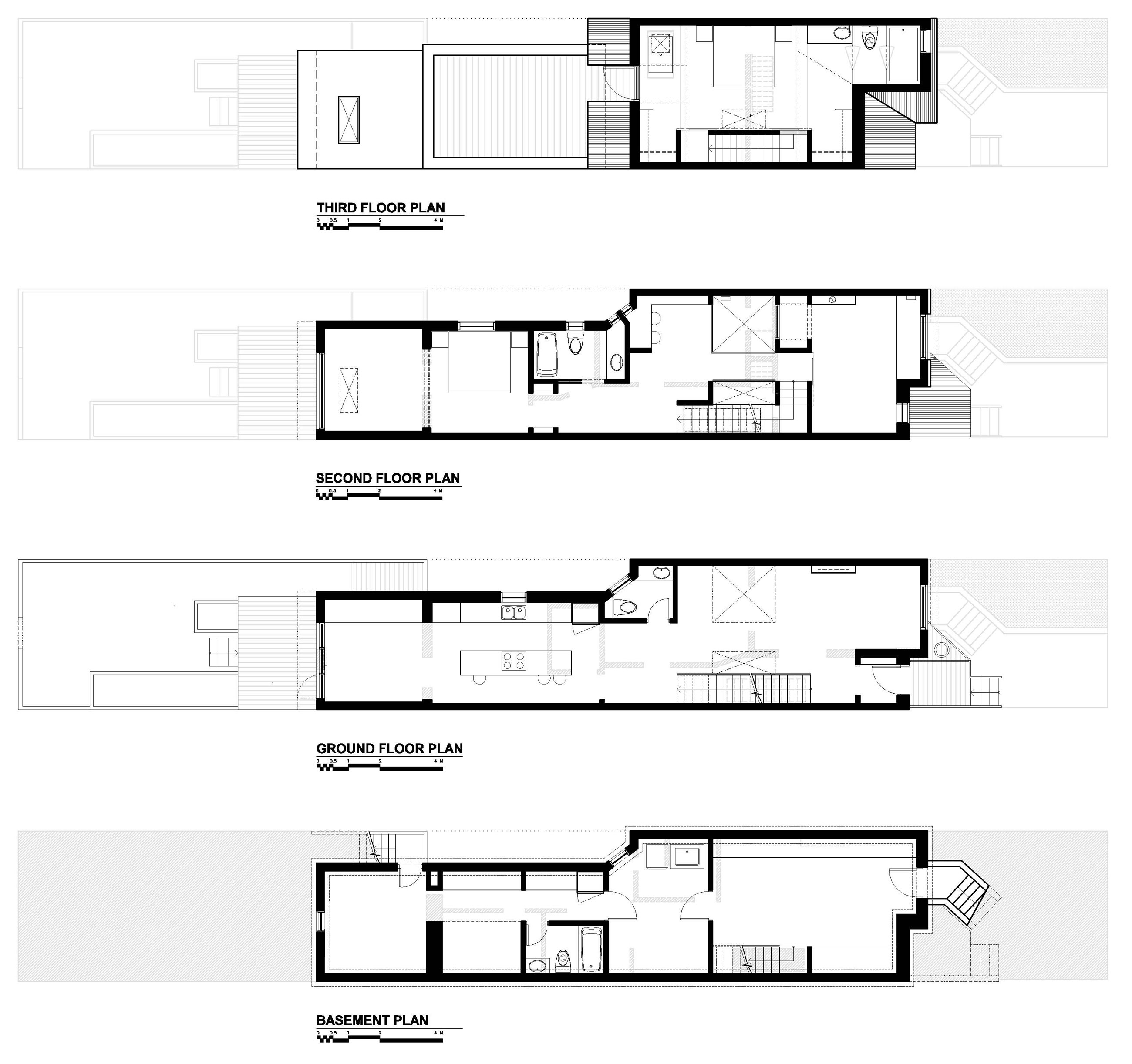
An Old Historic House Turned Into a Bright and Airy Modern Home in Toronto
»
ul23866w
An Old Historic House Turned Into a Bright and Airy Modern Home in Toronto
Back to gallery
Previous
Next
9/15 Images
An Old Historic House Turned Into a Bright and Airy Modern Home in Toronto by rzlbd (9)
You Might Also Enjoy
House
Cantilever House
A Unique and Geometric Contemporary House for a Retired Pilot in Duchess County
House
Wood Floors
A Stunning Contemporary Villa with Open and Airy Interiors in the Khandala Valley, India
House
Staircase
A Gorgeous Modern Home with Warm and Dynamic Interiors in Paddington, Australia
House
Channel Islands
A Stunning Family Home with Large Courtyard and Infinity Pool in Guernsey, Channel Islands
House
SDH Studio
A Bright and Airy Modern Home with Overflowing Pool in Florida
Dream Homes
Bologna
An Elegant Contemporary Home with a Stunning Landscaping Program in Bologna, Italy
House
Decorative Accessory
A Stylish Light-Filled Modern Home with Smart Red Accents in Brooklyn
House
Living Room
A Stylish Contemporary House with Striking Facade and Simple Interiors in Melbourne