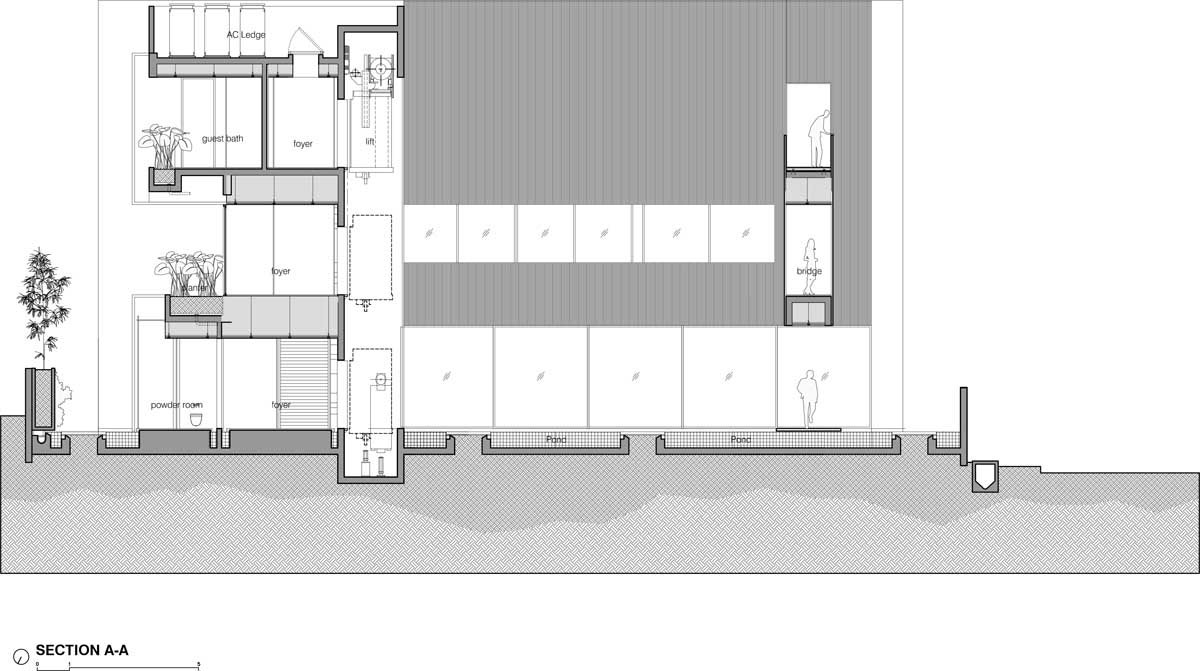
29/30 Images A Sophisticated Zen-Inspired House with Strong Lines and Geometric Shapes in Singapore by ONG&ONG (29)