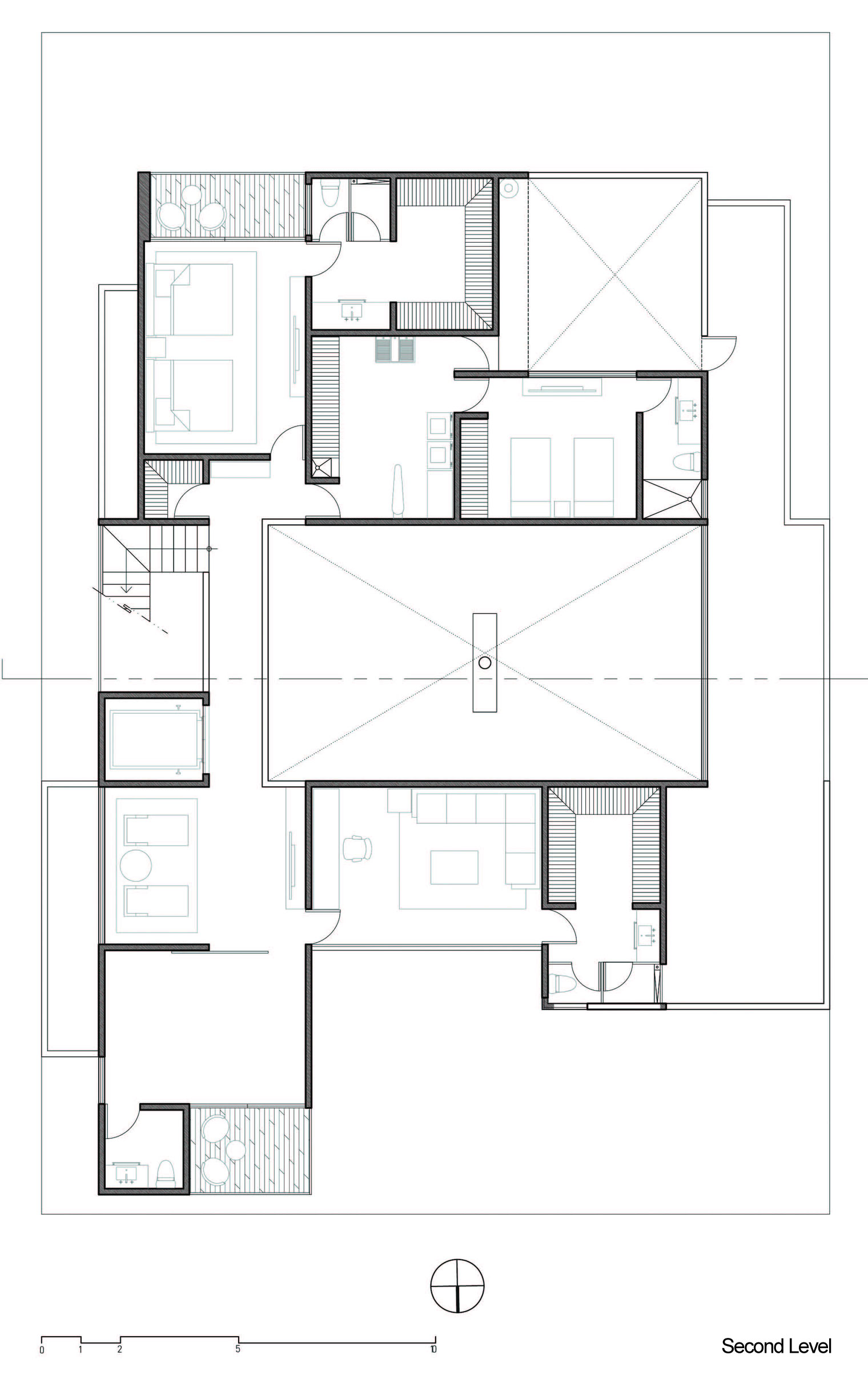
21/24 Images A Beautiful Modern Home with Cantilevered Volume and Floor-to-Ceiling Glass Walls in Garza Garcia by GLR Arquitectos (21)