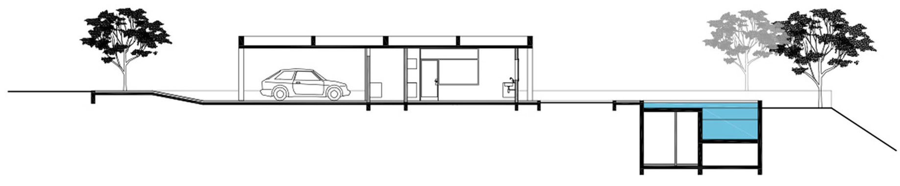
20/23 Images A Spectacular Contemporary Home with Spacious Indoor and Outdoor in Amparo, Brazil by Obra Arquitetos (20)