A Vibrant Contemporary Home with Abundant Natural Light and Bright Gamma Colors in Montreal, Canada

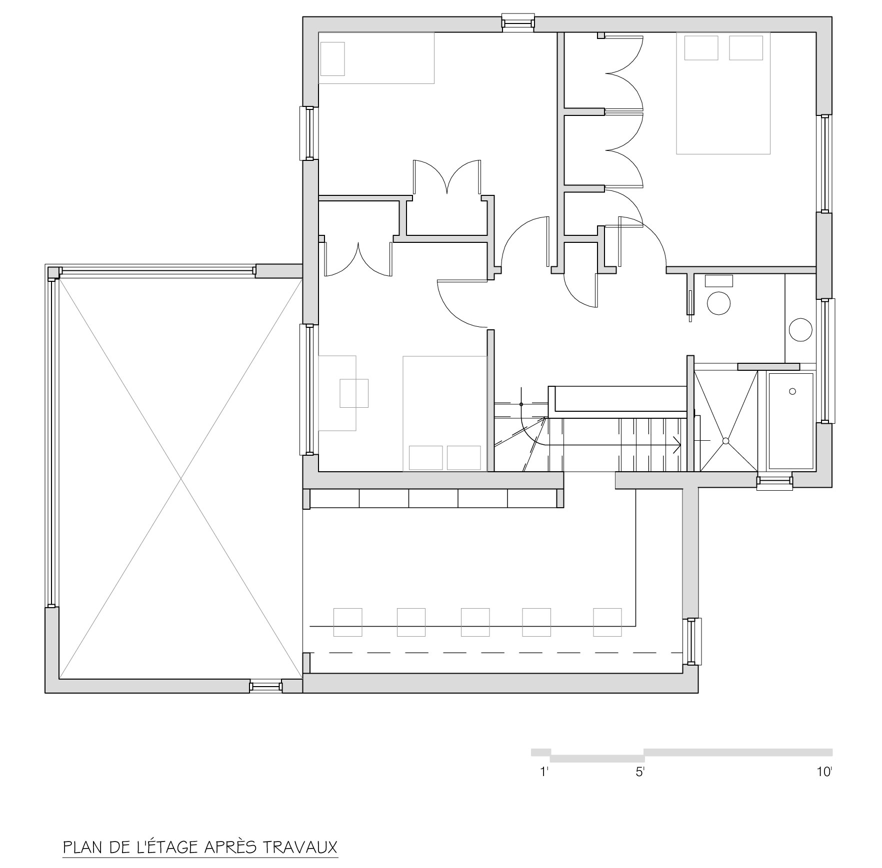
A Vibrant Contemporary Home with Abundant Natural Light and Bright Gamma Colors in Montreal, Canada by Anik Péloquin (12)
12/14 Images