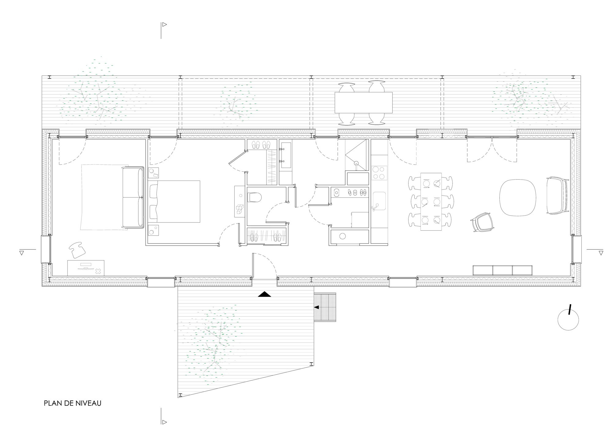
16/24 Images A Two Shipping Containers Turned into a Modern House for a Writer and Sculptor in Saint-Bresson by Spray Architecture & Gabrielle Vella-Boucaud (16)