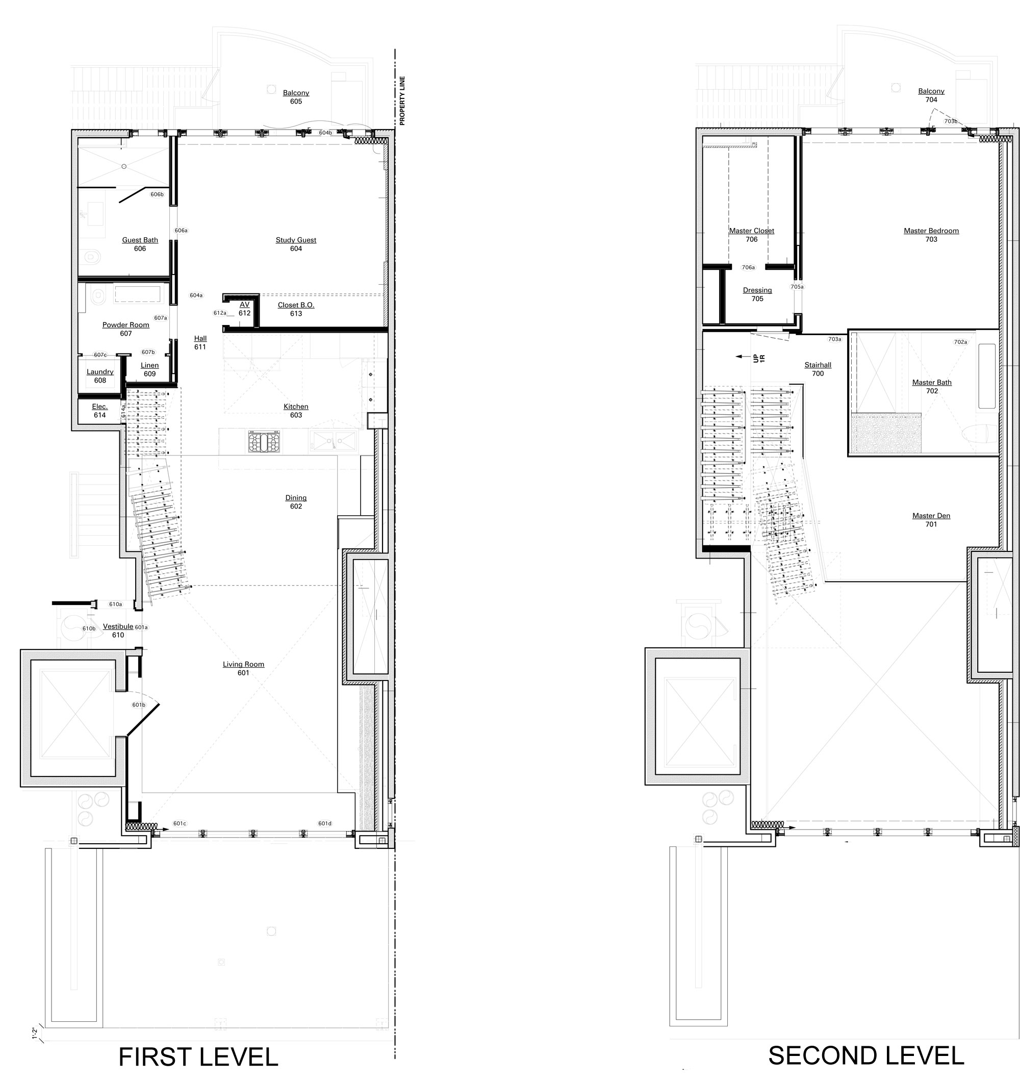
19/23 Images Luxury Modern Penthouse with Spaces Full of Natural Light for a Single Owner by Turett Collaborative Architects (19)