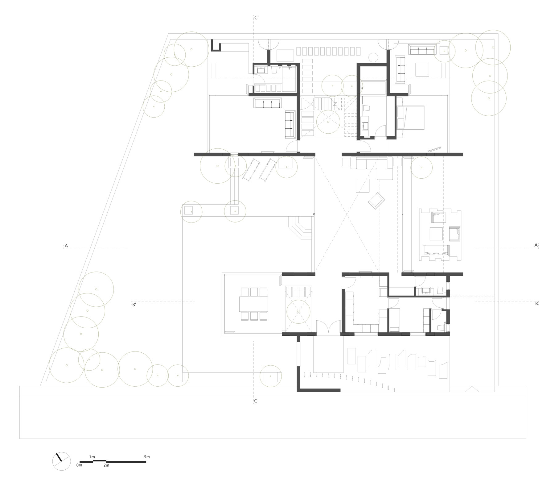
19/25 Images A Spacious Modern Retreat Surrounded by Gardens and Swimming Pool in Khandala, India by Abraham John ARCHITECTS (19)