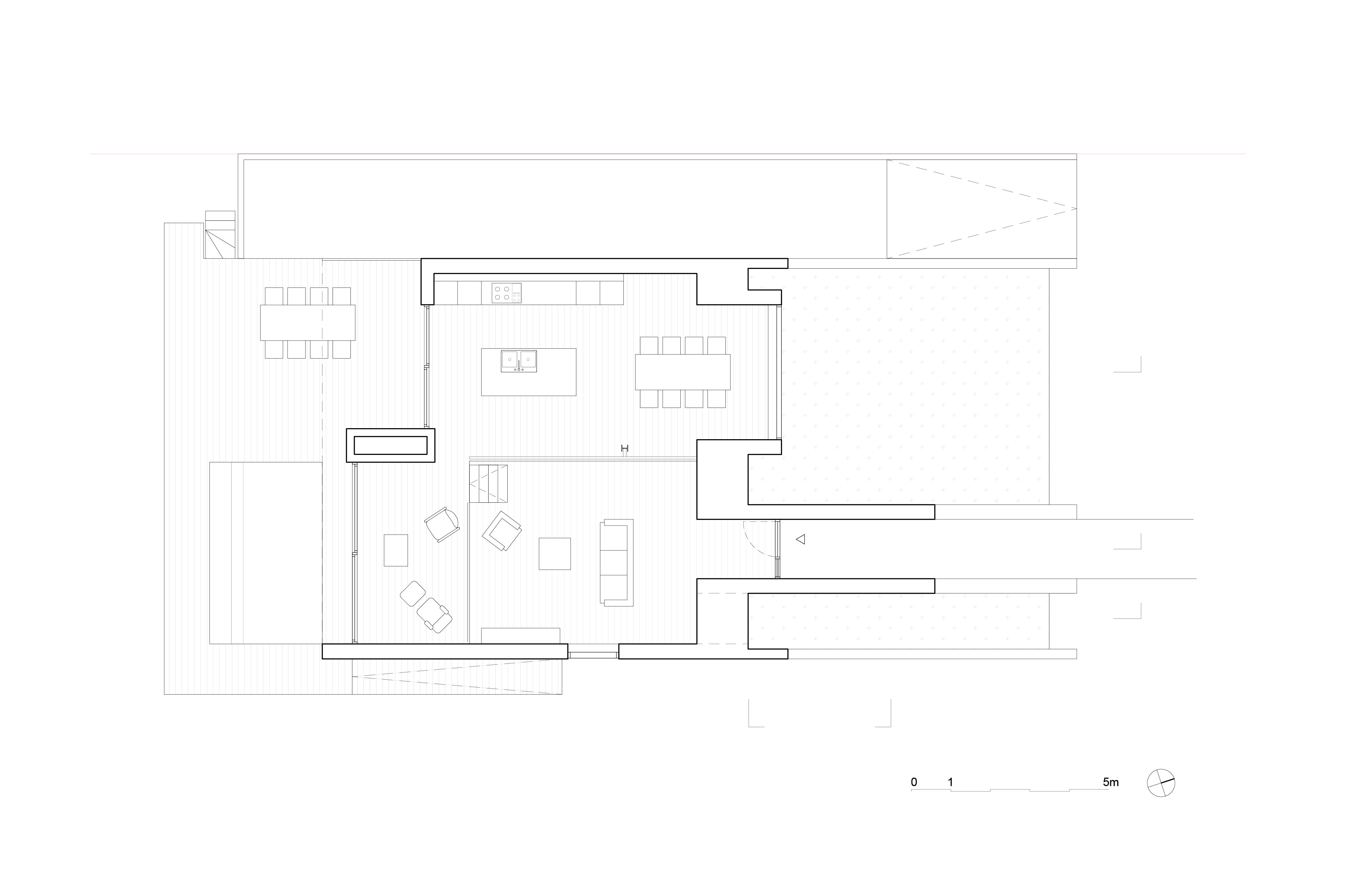
15/26 Images A Unique Modern Home with Sloping Green Roof and Split-Level Interior in Maldegem, Belgium by OYO (15)