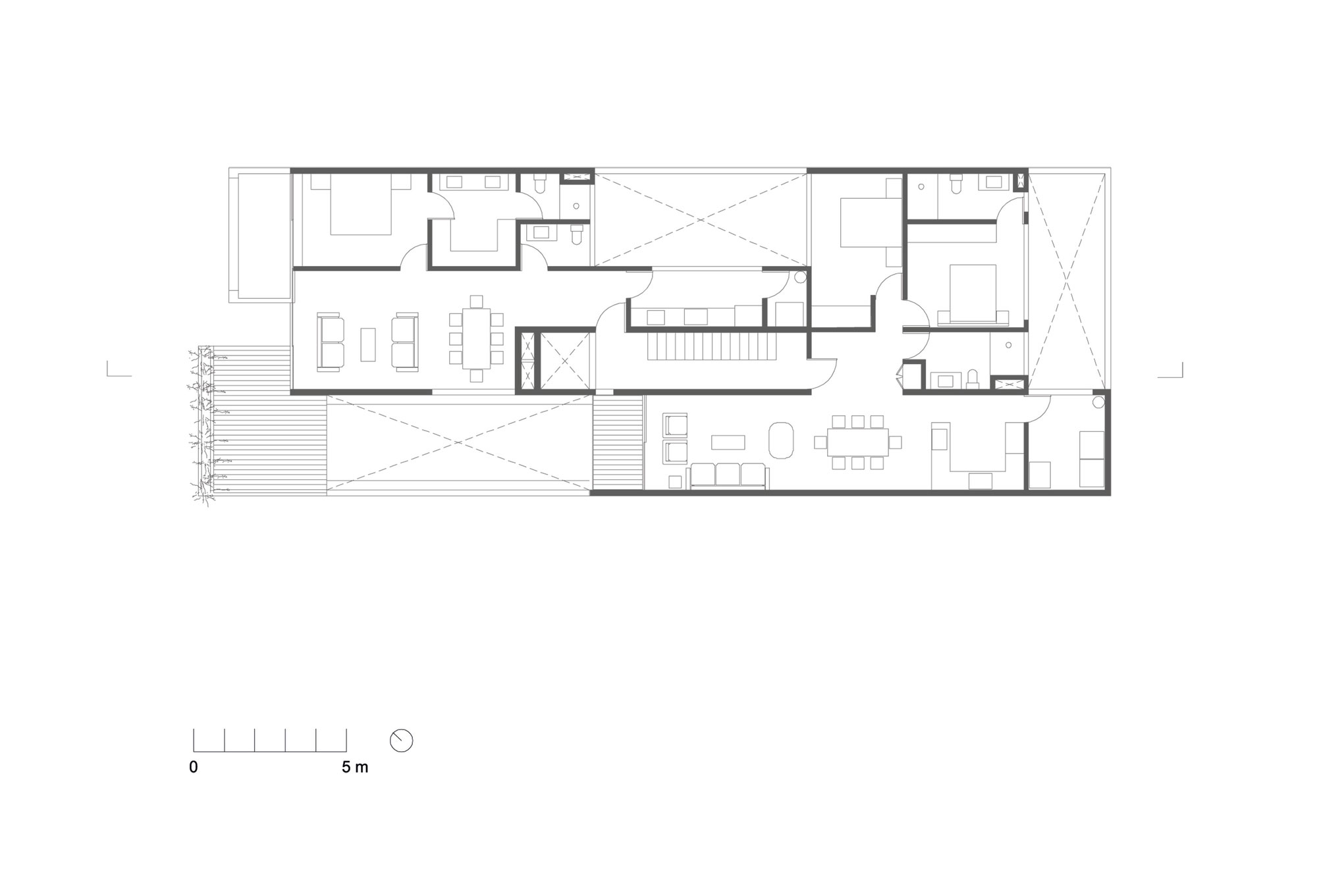
29/29 Images A Charming Art Deco Home with Unique and Modern Flair in Mexico City by Jorge Hernández de la Garza (29)