GO-BANG! House by Takeru Shoji Architects
In a region of heavy snowfall in Nagaoka, Niigata, Japan, the site is situated in the semi-industrial zone, more specifically, in a residential district in between factories and rice field. An elevated railway for The Jōetsu bullet train nearby as well as a broad road and a river for industrial use characterize slightly larger-scale landscape of the area. In contrast to a large plot of such a landscape, GO-BANG! House is required to be compact for parents and a child.
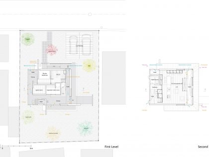
On the ground floor, four rooms: master-bed room, walk-in-closet, Japanese-style room and a spare room, are assembled as a compact core of life and structure in the centre of the house. The core is surrounded with the mortared floor, which is traditionally called “Doma” in Japan, so that the Doma takes an important role for the circulation and extension of their activity. Filling the Doma up with a motorbike, bicycles, pieces of furniture and various charming goods, and making good use of clues of both walls penetrating inside and outside and the exterior space under the eaves around the house, a variety of hobbies and their daily life are unfolded from the core to the open space in the site; from inside to outside.
Kitchen and their favorite chairs are put in an attic on the small core, as if living space were floating in the space encapsulated in the outer wall and roof. The outer wall obtains firm stability as a bearing wall with structural larch plywood in thickness of 24mm (0.94in). Moreover, the outer roof is supported by three large suspended walls made with steel truss and larch plywood in same thickness as the outer wall. Thus a spacious one-room with large openings at the corner of the house is achieved without pillars in a region of heavy snowfall in Nagaoka.
From the wall to the ceiling, Larch plywood was carefully polished and dyed white as an interior finish, therefore the proper diffusion of the light wraps the life gently. This roughness of the Larch plywood is too crude for the interior in a sense of touch, but too delicate for the exterior.
The consciousness of the spatial continuity between inside and outside is a result of the ambiguity created from both the materiality of larch plywood and the elaborate detail for the sash-less opening. We might feel as if we relaxed in a bower in the garden on the ground floor, on the other hand, as if we lived in a small floating garden on the first floor. Such an open feeling and environment are created in the very middle of the industrial area.
The House Design Project Information:
- Project Name: GO-BANG! House
- Location: Nagaoka, Japan
- Project Year: 2014
- Type: Single Family House
- Materials: Wood
- Designed by: Takeru Shoji Architects
- Area: 92 m²
- Status: Completed works
Photos by: Takeru Shoji Architects & Isamu Murai
View more: A Concrete Home with Beautiful View of Pool and Garden in Santa Ponsa, Mallorca
Related: A Unique and Stylish Modern Home in the Pine Forest in Utrecht, The Netherlands
Here: A Spacious Cube-Shaped House with Modern Features in Ramat Gan, Israel
Read also: A Stylish Contemporary Home with Spiral Staircase in Rome, Italy
Next: A Beautiful Family Home Nestled in the Woods of Quebec












