A Striking Contemporary Home with Glass Facades in Montmorency, France

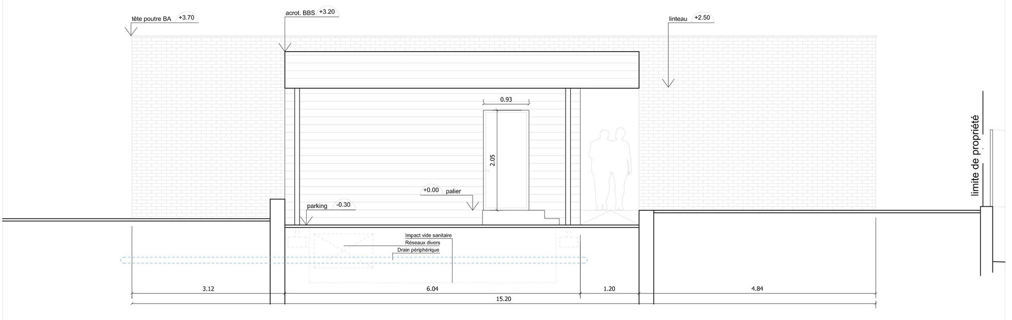
A Striking Contemporary Home with Glass Facades in Montmorency, France by A+B architectes dplg (26)
26/28 Images

A Striking Contemporary Home with Glass Facades in Montmorency, France by A+B architectes dplg (26)