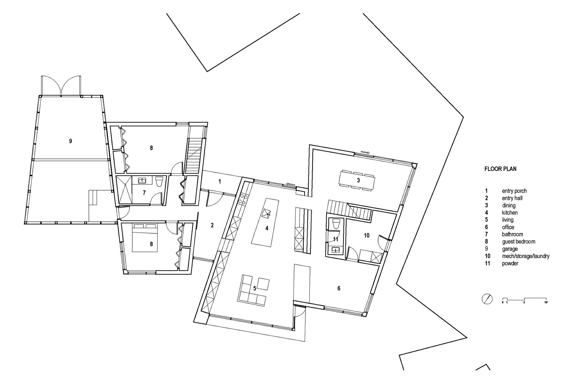
17/20 Images A Spacious and Unique Contemporary Home for a University Researcher in Halifax by Omar Gandhi Architect (17)