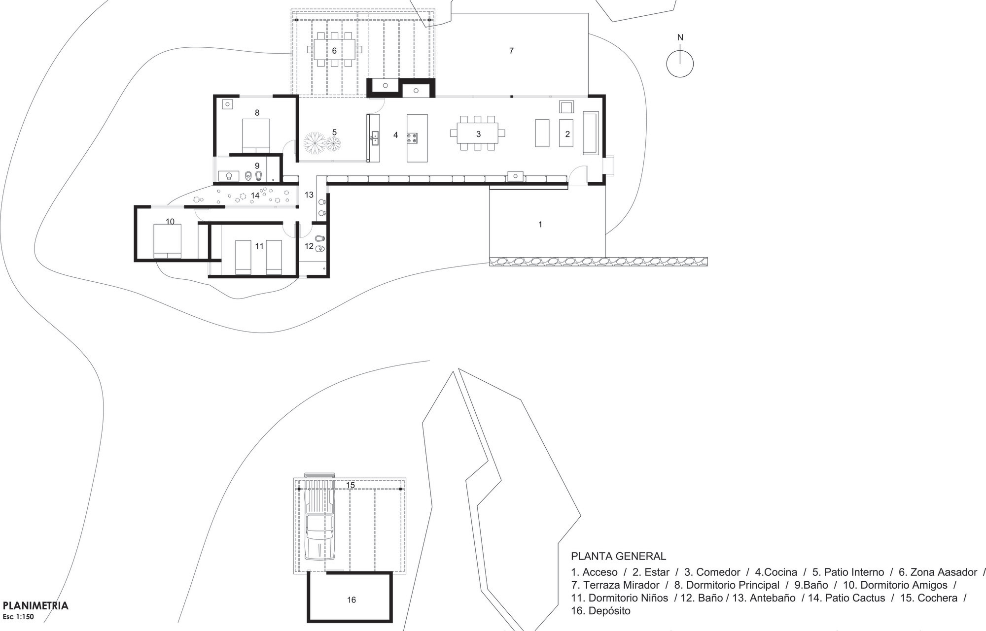
20/24 Images A Spectacular Contemporary House Surrounded by the Rocky Landscape of Pocho, Argentina by Mariana Palacios (20)