Casa CSP by Pablo José Vailatti
Located on the north coast of Santa Catarina, Penha stands out for its entertainment and beach tourism, having as an anchor of its development the Beto Carrero World Park, in addition to 19 beautiful beaches. The CSP house is located on the biggest of these beaches, Praia de Armação, and has a privileged location on land facing the sea.
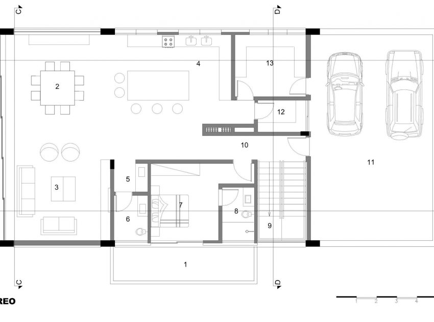
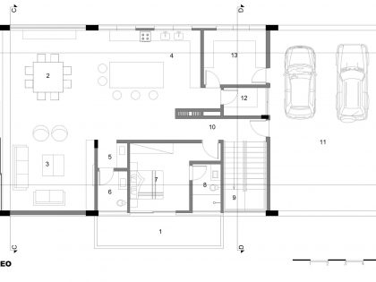
The program was divided into two built sections, the main house with 2 floors and the leisure area on the ground floor, in addition to a large open area with a swimming pool, solarium, garden, kiosk, spa and outdoor seating area.
For the implementation of the main body, a large setback was left in the northern portion of the land, facing the sea, and parallel to this block, the low block was placed, even further back from the sea. In this open space, facing the north and facing the sea, the swimming pool and other open areas for leisure and socializing were installed, allowing them to enjoy the view of the local landscape, marked by the beach, the sea and the horizon.
Interconnecting these three parts of the project, main block, low block and pool area, a small two-step lowered area was designed with spa, fireplace and outdoor seating.
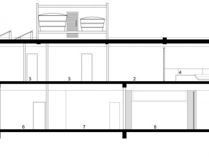
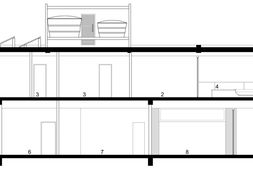
The supporting structure of the house is formed by exposed concrete beams and pillars measuring 30 cm x 70 cm.
On the ground floor, the structure consists of 6 apparent pillars on its perimeter and on the upper floor the number of apparent pillars on the perimeter of the volume becomes 8 pillars, 4 of which are at the ends of the balances.
The structural synthesis configures the architecture of this residence. The skeleton of visible beams and pillars form a heavy and, at the same time, floating volume. Robust beams and pillars form two large overhangs, measuring six and four meters in the north and south directions. To the north, this swing sets up the social veranda and to the south, the largest swing sets the space for the shelter of cars.
The CSP house seeks to express in its architecture the strength of structural truth. A hollow concrete structure on the upper part, configuring upper terraces with their cut-out roofs and swings on the ground floor, these formatting covered and open spaces, which integrate the external areas.
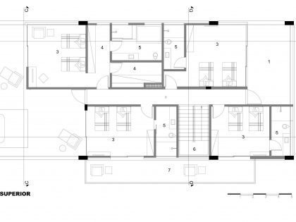
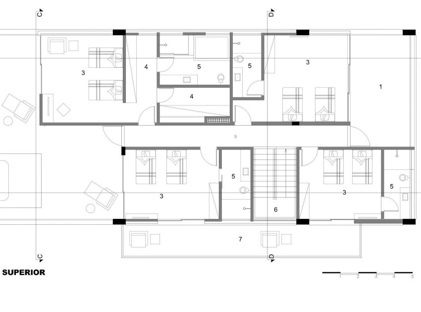
The terrace on the upper floor allows the intimate sector of the house an open, ventilated, lighted space, which allows contact with the exterior and open space of the residence.
This terrace has a privileged view of the site and allows the structure of the house to be explained, the central idea of the architectural project, since when it is not closed, it only displays its structural parts, the subtle negatives between the beams and pillars, the cut-outs in the slab. Coverage, and makes us perceive this architecture as the relationship between the structure of the building and the landscape of the place, as a relationship between program, structure and landscape.
Photos by: Pablo José Vailatti
Related: An Elegant Modern Countryside Home with Warm and Natural Atmosphere in Lagos, Portugal
We recommend: A Small Modern Home with Central Atrium and Rustic Vibe in Hoàng Văn Thái
Try these: An Elegant Contemporary Home with Earthy and Masculine Interiors in Belgium
Related: A Stunning Contemporary Home with Lavish Garden and Pool in El Salvador
Up next: A Stylish Contemporary Home with Light and Airy Interiors in Singapore
See also: A Stylish Contemporary Home with Smart and Dynamic Façade in Linz, Austria
Read: A Mid-Century Modern Home with Stylish Exterior and Interior in Byron Bay, Australia
What we thought: A Spacious Modern House with a Relaxing Decor Done in White in Tübingen, Germany
Read more: A Unique and Beautiful Home with Stunning Views Over the City in Monterrey, Mexico
View more: A Unique Terraced House Combines Traditional and Contemporary Interiors in London












