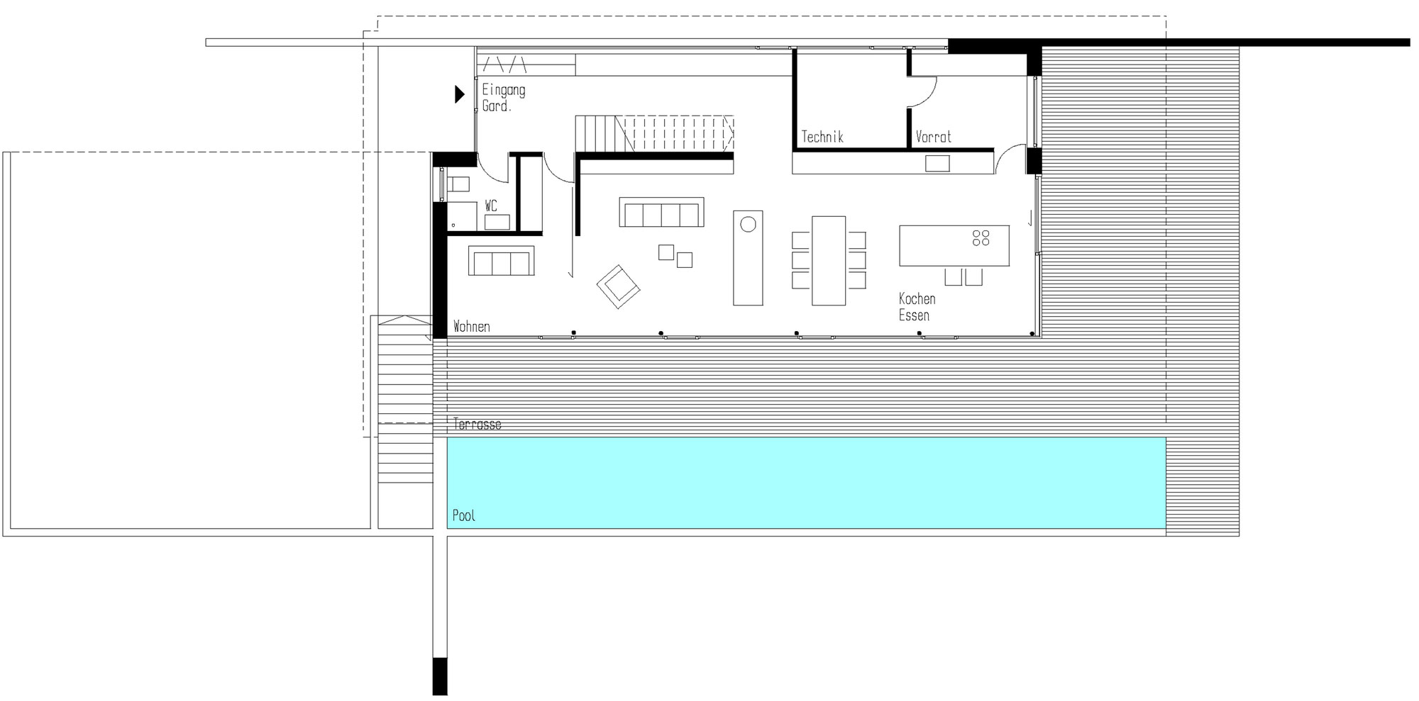
22/28 Images A Stunning and Elegant Home Built on a Slope Overlooks Beautiful Mountains of Liechtenstein by k m architektur (22)