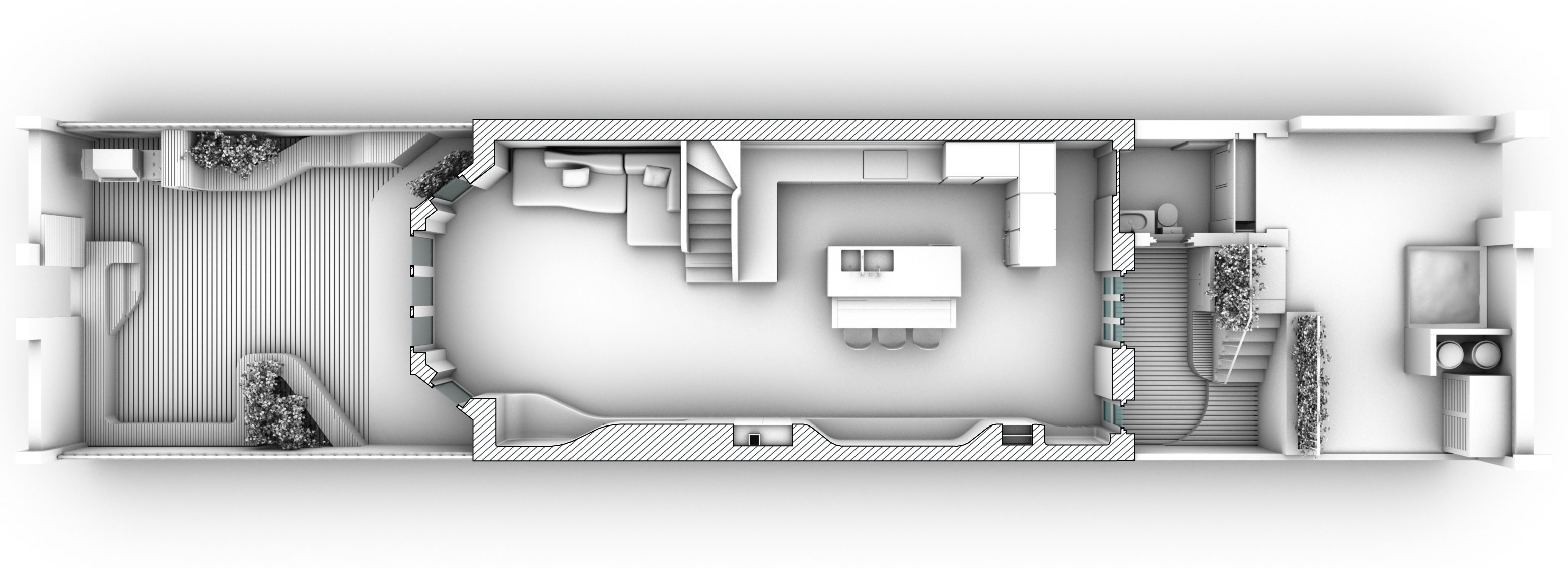
16/20 Images A Victorian Terraced House Turned into a Luminous Home in Canfield Gardens, London by Scenario Architecture (16)