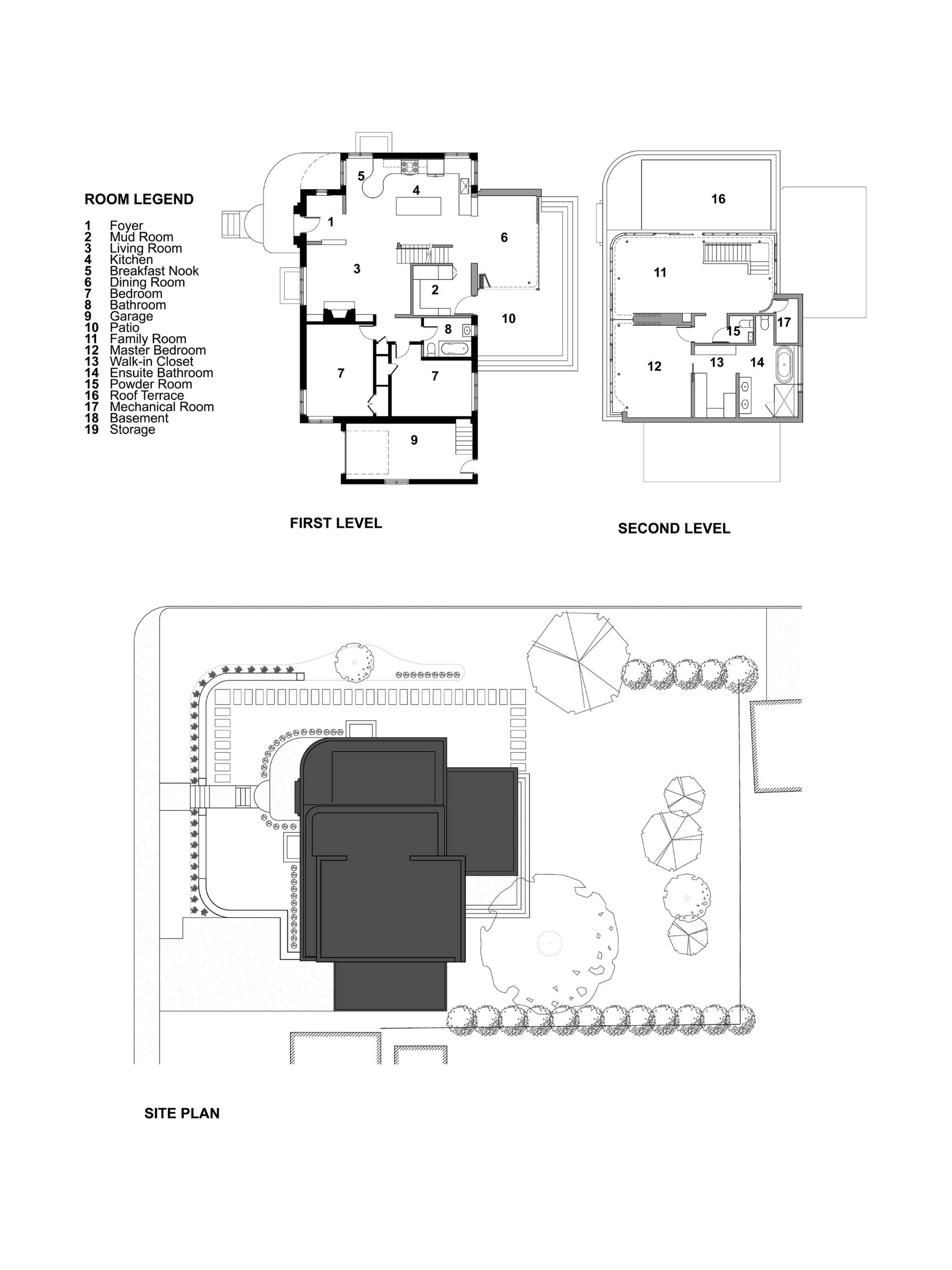
A Contemporary Art Deco Home in Hamilton, Canada

A Contemporary Art Deco Home in Hamilton, Canada by DPAI Architecture & Toms + McNally Design (11)
11/12 Images