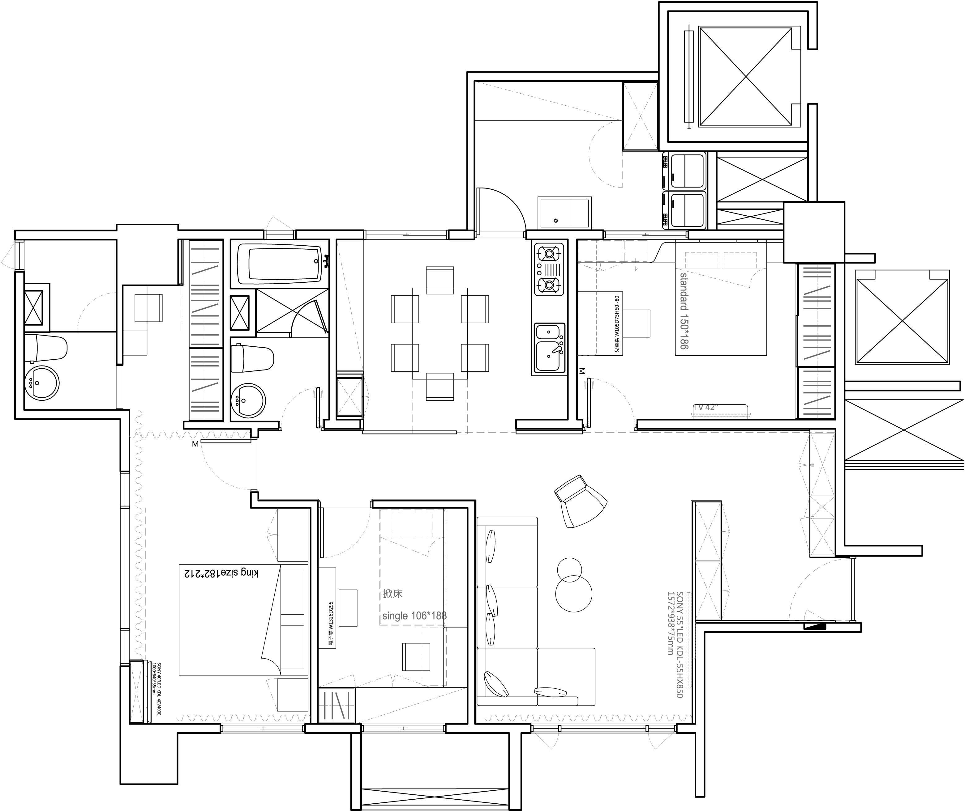
11/11 Images An Elegant and Fascinating Contemporary Home for a Three-Person in New Taipei City by KC Design Studio (11)