Residence Jiang by KC Design Studio
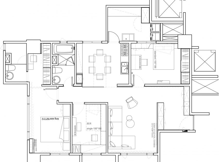
Located in New Taipei City, the case is a 27 pyeong (about 89m2 [958 ft2]) interior space for 3 people.
Nowadays people acknowledge the importance of openness in the dwelling environment, and so is this case. From the entrance, a medium high cabinet is used as a screen to create a partially penetrating sight yet keep the cushioning effect of entryway, which is then clearlyseparated from the living room through the change of ceiling and other materials. The original kitchen and dining room is partially knocked through, and the connection between living room and kitchenbecomes more flexible and mobile due to the double wing sliding door.
Contracting with the rough and humanistic feeling of stone and wood, or the elegant bronze and baking finish, the points, lines and surfaces designed in curve style bringsgraceful and fascinating mixture into the space through texture, material and soft shape.
Photos courtesy of KC Design Studio
View more: A Luminous Apartment Full of Contemporary Elegance in Siena, Italy
Related: A Simple and Clean Apartment with Bright and Functional Interiors in Milan, Italy
Here: A Bright and Stylish Family Home with Luminous Interiors in Melbourne, Australia
Read also: A Stunning Modular Apartment with Elegant and Neutral Color Palette in Poznan












