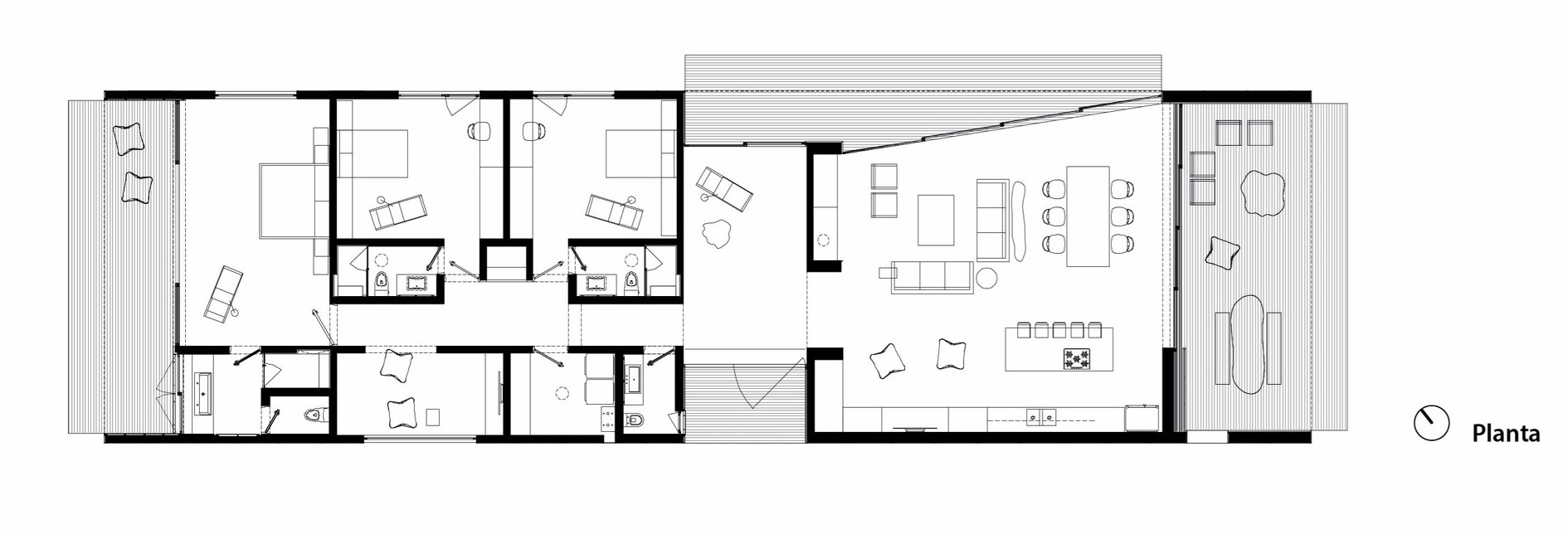
17/18 Images A Weekend Contemporary Home with Polished Steel on the Edge of a Mountain in Tapalpa by Elías Rizo Arquitectos (17)