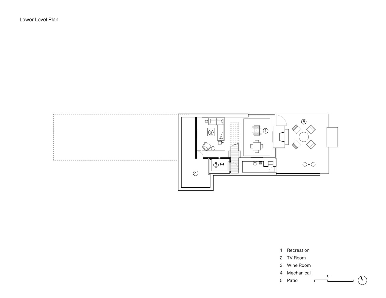
18/20 Images Olson Kundig Designs a Cozy Modern Vacation House Overlooks the Pine Forests of Northern Montana (18)