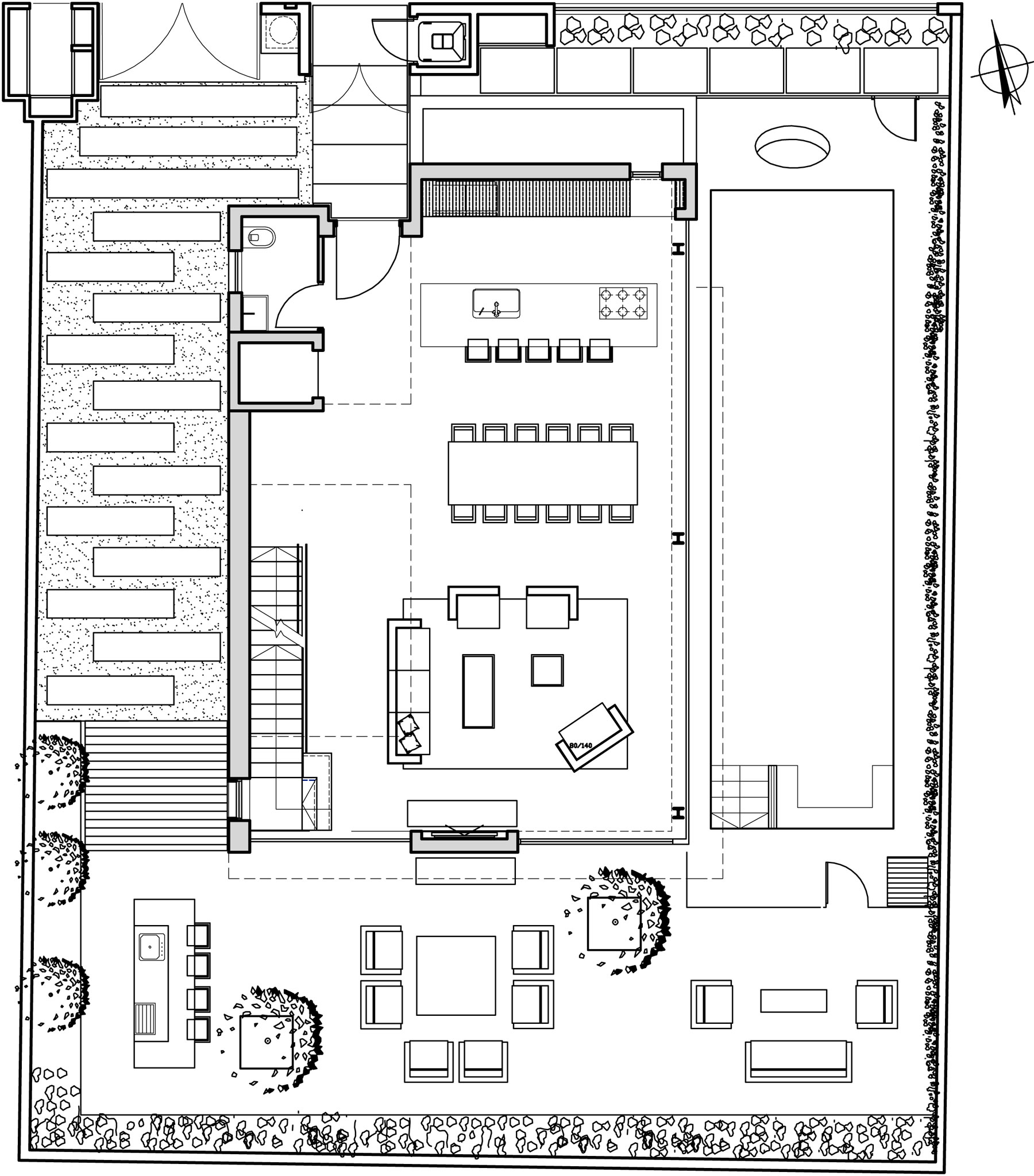
30/32 Images A Stylish Modern Home with Black Facade and White Interiors in Tel Aviv by Israelevitz Architects (30)