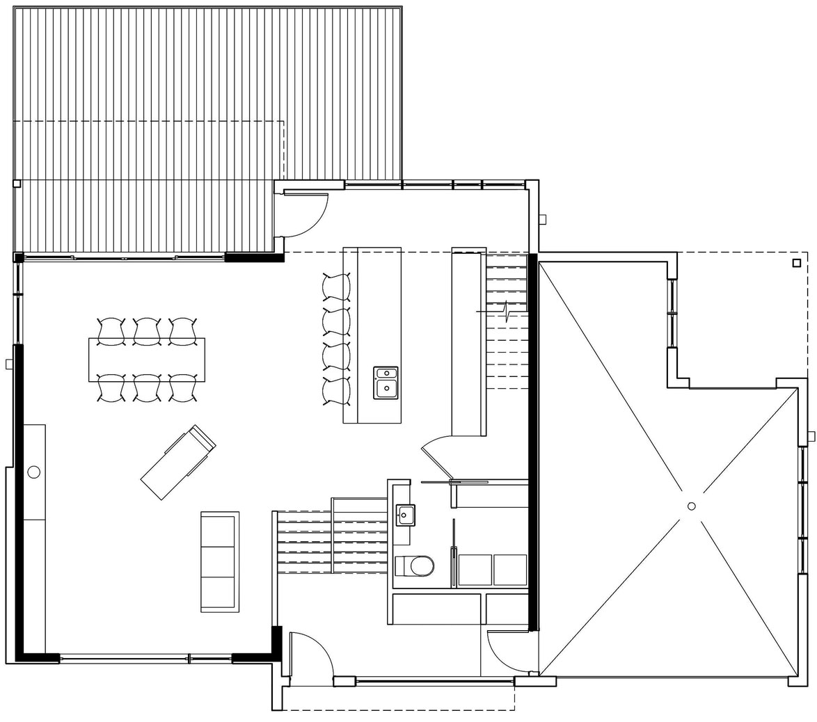
9/15 Images An Elegant and Spacious House Blended with Stunning Natural Surroundings in Quebec City by Hatem+D Architecture (9)