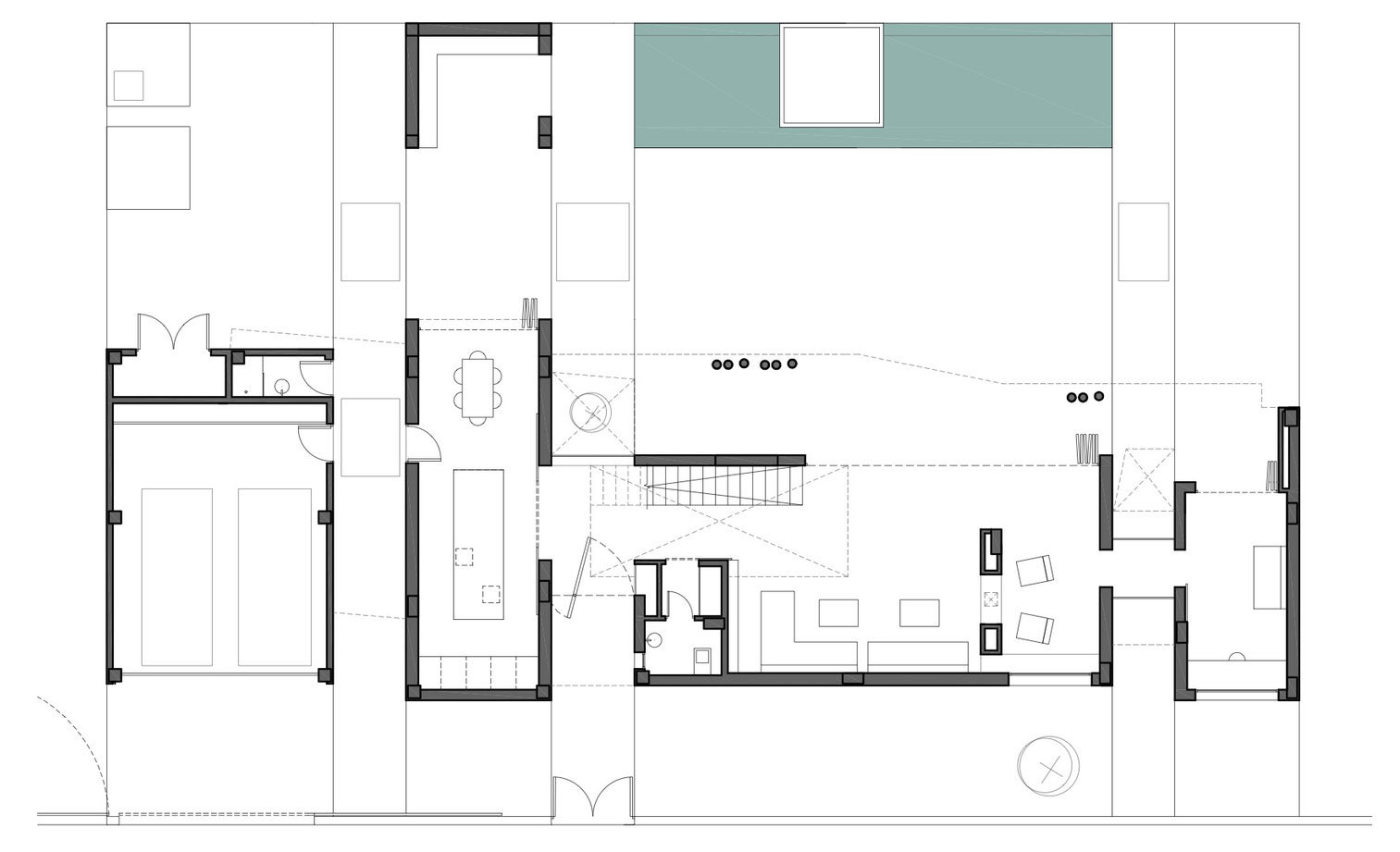
16/19 Images A Bright Contemporary Home with Pool and White Interior and Exterior in Albolote, Spain by Ceres A+D (16)