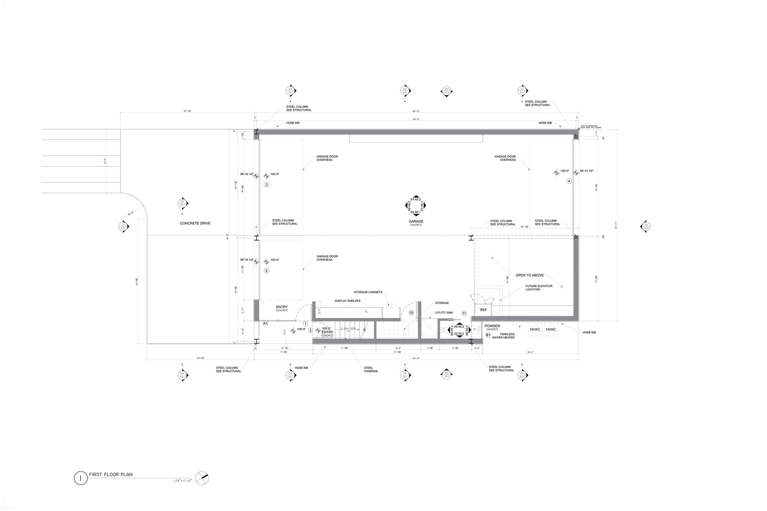
26/28 Images A Stylish Modern Home for a Car Collector in Austin, Texas by Matt Fajkus Architecture (26)