Lopez House by Martin Fenlon Architecture
This project, located in the Eagle Rock area of Los Angeles, is situated on an irregularly-shaped, steeply-sloping lot. Faced with a limited budget, it was particularly challenging to negotiate the constraints of the lot while taking advantage of the site’s sweeping view. The owners wanted the house to evoke the area’s craftsmen architecture, so this vernacular served as a basis for the design.
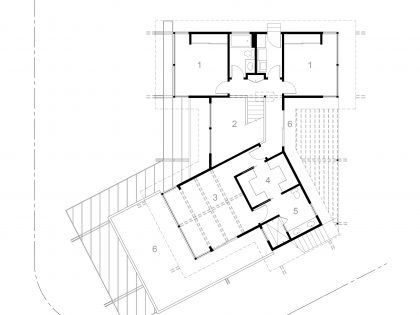
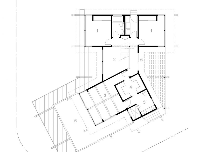
The floor levels, stacked over the garage below, are stepped up the hillside and adjust to the shape of the lot. Both the living area and the master bedroom are oriented towards the view. The main spaces are cross-ventilated and organized around the central stair hall, which creates a stack effect that augments the passive air system. The walls of every space in the house are capped with an exposed header. This technique, originally derived from Bernard Maybeck, was later used by Rudolph Schindler as a way to reduce finish costs. Each of the headers has been split into two, sandwiching the walls from the interior and the exterior.
They double as finish material inside and out, which reduces the cost while allowing insulation and waterproofing to pass in between. These headers, along with all of the railings, exposed structure, and sun-shade trellises, are built with common 2×4’s and 2×12’s, painted black. What results is a combination of economy, sustainability, and structure, manifested in the encompassing black woodwork.
Photos by: Martin Fenlon Architecture & Eric Staudenmaier
View more: An Eco-Friendly Contemporary House Perched on the Beautiful Landscape in Noord-Beveland
Related: A Stylish and Eco-Friendly Modern Home From Old Shipping Containers in Brisbane, Australia
Here: A Stunning White House with Beautiful Pops of Color in Seoul, South Korea
Read also: A Stylish and Eco-Friendly Modern Home From Old Shipping Containers in Brisbane, Australia
Next: A Stylish Modern House Surrounded by Plants and Nature on the Hill in Lima












