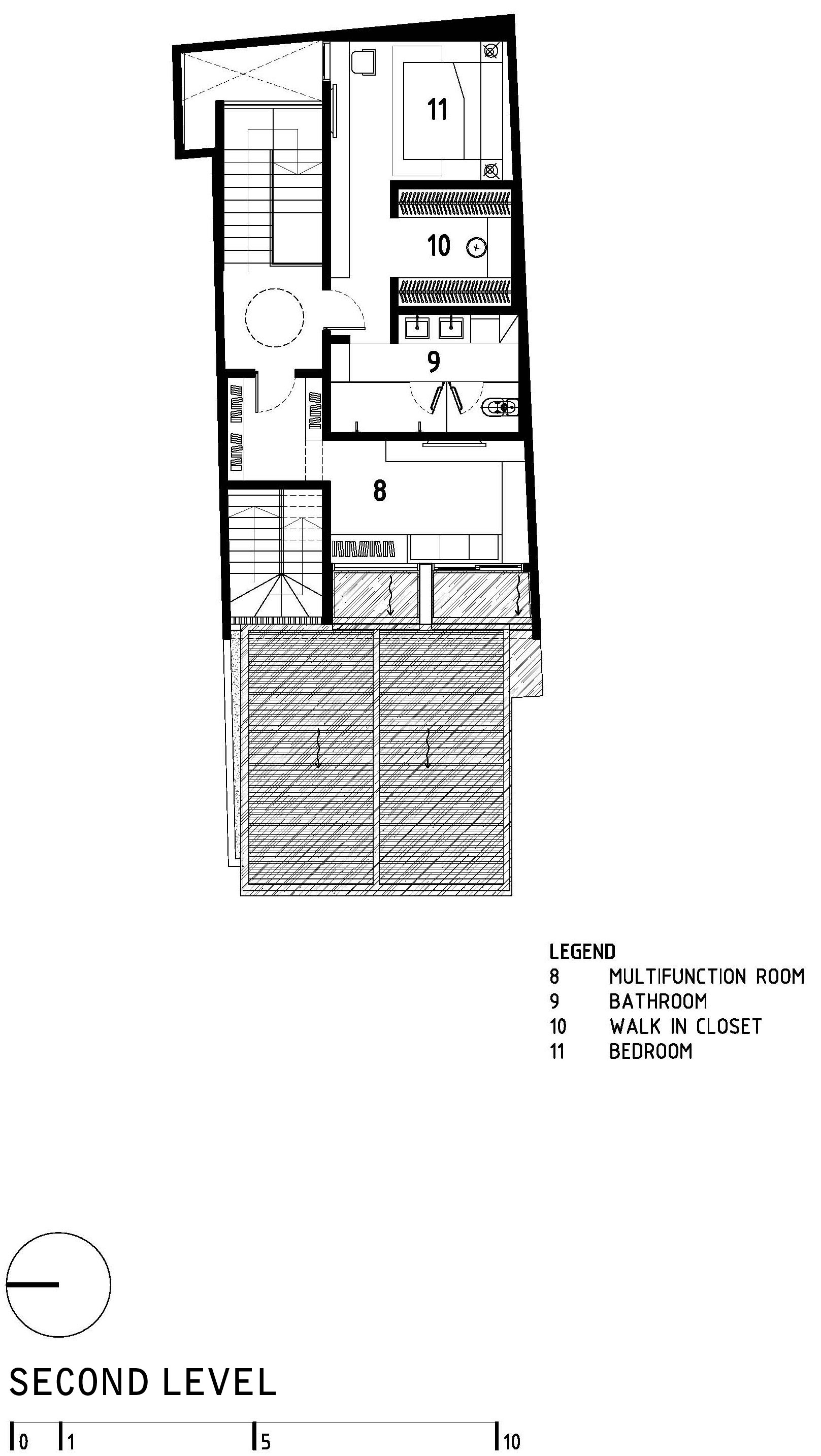
24/25 Images A Bright Modern House with Simple, Clean and Sleek Lines in Jakarta, Indonesia by DP+HS Architects (24)