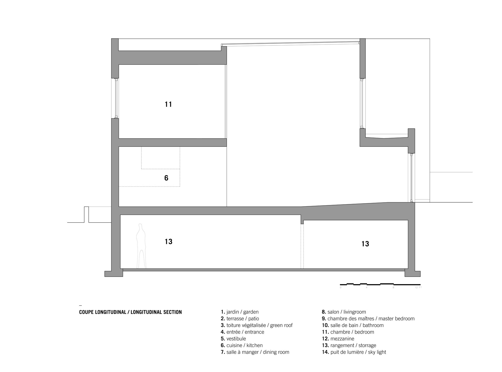
27/28 Images A Home with a Brick Front and a Monochrome Back for Family of Four in Montreal by NatureHumaine (27)