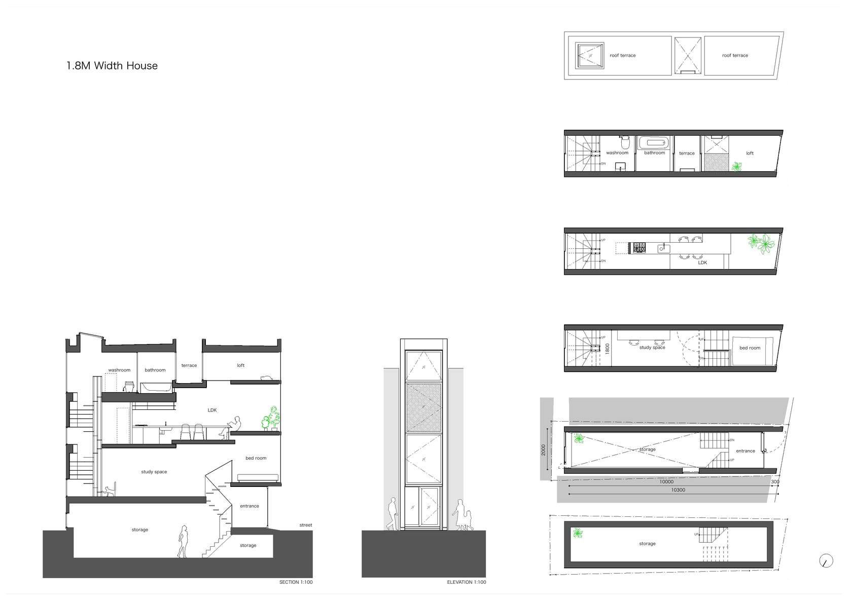
12/12 Images A Playful and Modern Vertical Home in Toshima, Japan by YUUA Architects & Associates (12)