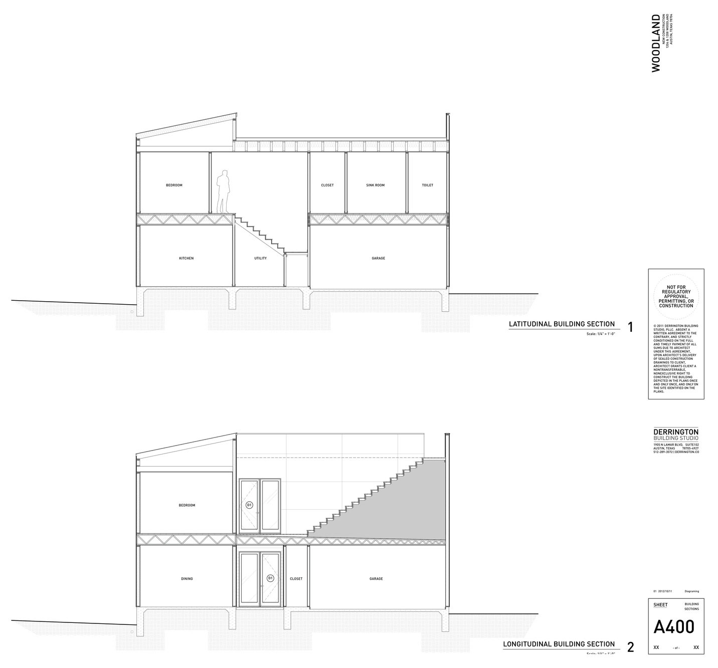
30/32 Images A Light and Bright Contemporary Home Surrounded by Lush Vegetation in Austin, Texas by Derrington Building Studio (30)