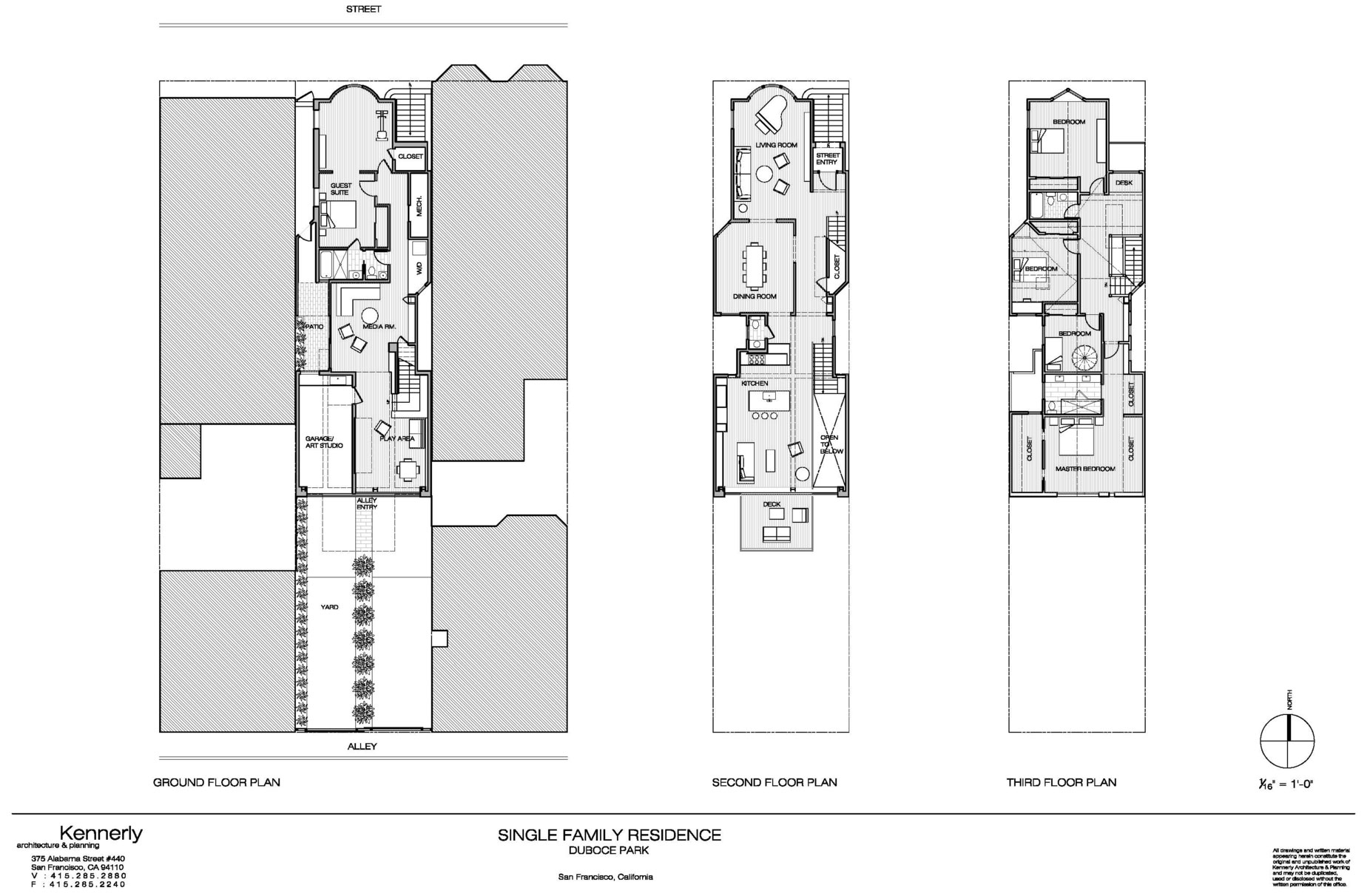
A Stunning House with Two Faces Made of Recycled Plastic and Massive Glass Walls in San Francisco

A Stunning House with Two Faces Made of Recycled Plastic and Massive Glass Walls in San Francisco by Kennerly Architecture & Planning (16)
16/17 Images