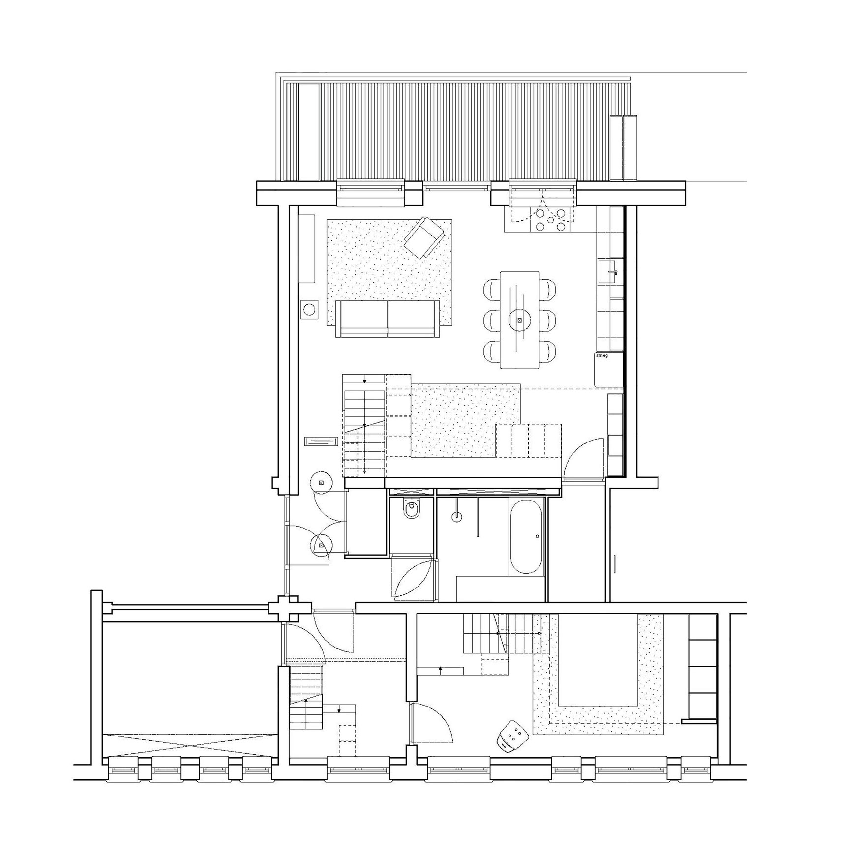
18/18 Images An Old School Building Converted into Swanky Contemporary Apartment in Amsterdam by Standard Studio & CASA architecten (18)