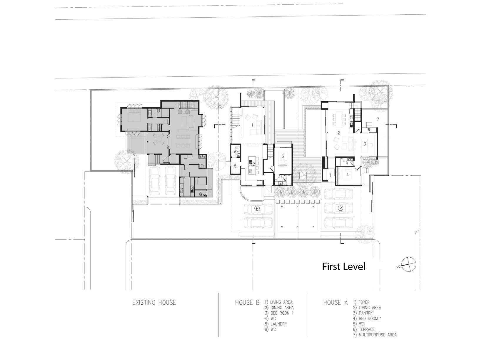
19/30 Images A Striking Modern Industrial House with Sophisticated Accents in Bangkok, Thailand by Alkhemist Architects (19)