Apartment in Tel Aviv by Mayan Studio
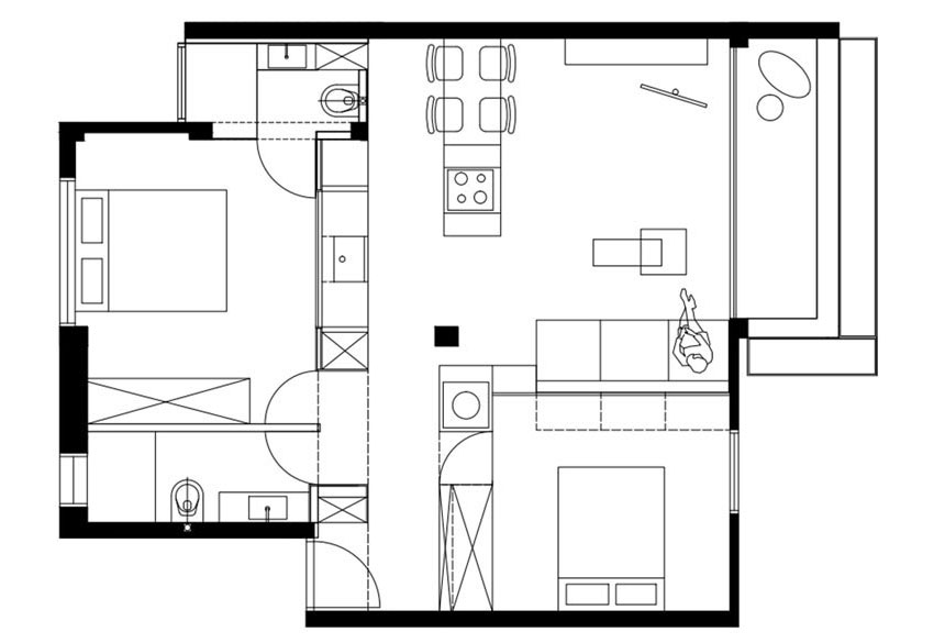
Mayan Ish Shalom, of Mayan Studio, worked with Michal Tchwella, under the command of designer Amir Navon on Navon’s renovation of this second floor apartment. Situated in Tel Aviv, Israel, the 1950’s building residence has 67 square meter (721 square feet) living arrangement that was separated into an excess of little space that needed natural light.
The apartment was planned with windows on the front and on the back, which are the only methods of airflow of the home. To make a cross breeze, a window was incorporated with the focal point of the kitchen that peeps through to the main room. The window not just assists with flow, it gives light a chance to pass through and gives a perspective through to the outside window that watches out onto the patio nursery.
The humble estimated inside was keep perfect and negligible with all surfaces painted white lighting ricochet around. Dark articulations and intermittent subtle elements in alleviating hues pop up sparingly.
The additional room was put behind a glass divider with extra shades for protection when required. They can be kept open to give the common light a chance to flow and to give the inside a feeling of more space.
Photos by: Mayan Studio & Gidon Levin 181 Architecture Photography
View more: A Small Apartment Under 50 Square Meters in Moscow
Related: An Elegant Monochromatic Apartment with Light and Airy Interiors in Parc Vera Condo, Singapore
Here: An Old School Building Converted into Swanky Contemporary Apartment in Amsterdam
Read also: A Charming and Eclectic Apartment with Whimsical Interiors in Kiev
Next: An Elegant Apartment Full of Style and Comfort in Tribeca, New York City












