Tile House by Cubus
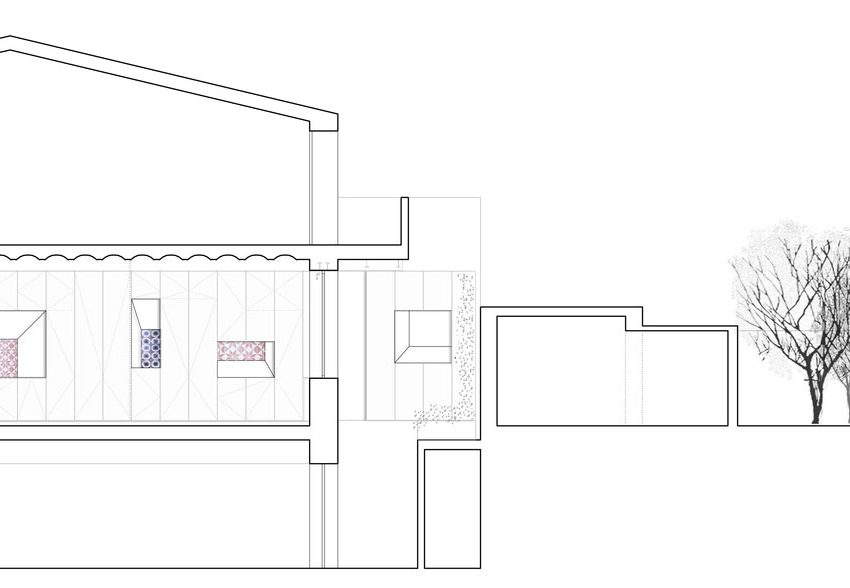
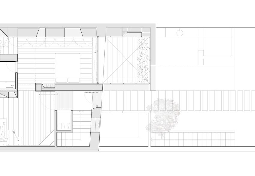
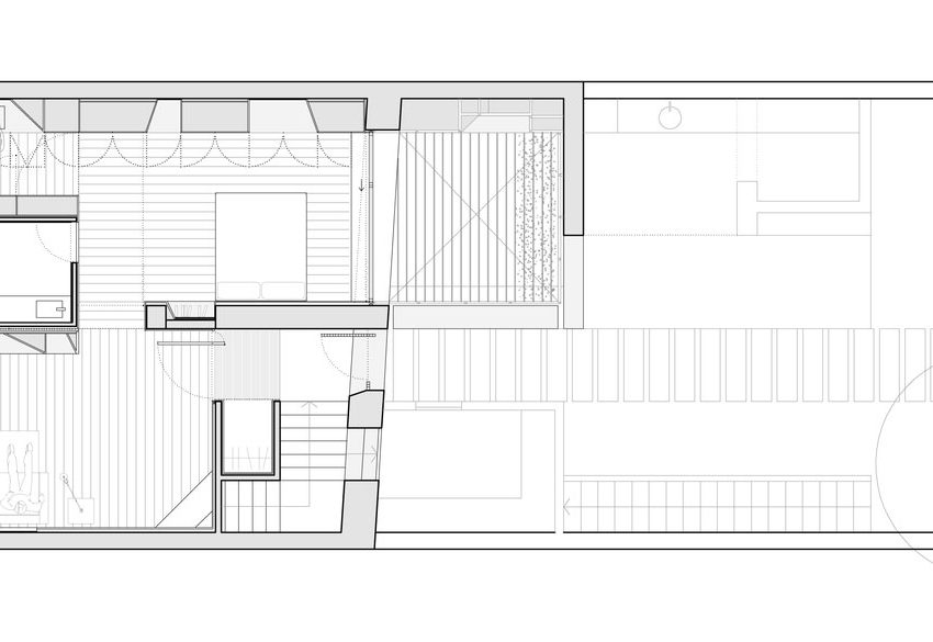
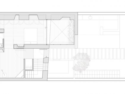
Complete refurbishment of a house in Costa Brava. Located in an old building, the proposal aims to transform the intricate original distribution in a clean space by creating a “thick” and white perimeter (containing the necessary storage area and integrating the kitchen cabinets), in which light contributes to the spatial clarity, giving greater depth to the different areas. The procedure is completed with the inclusion of a central wooden box containing the bathroom, which gives order to the spaces around it thanks to its position.
This project has also memory, recognises the value of the true original elements: the existent ceramic roof (which is now showed and recovered) and especially the original hydraulic tiles, which are now integrated as niches emptied into the new storage perimeter.
Photos by: Cubus & Nani Pujol
View more: A Compact and Contemporary Family House in Hluboká nad Vltavou, Czech Republic
Related: A Stone Stable Block and Farmhouse Transformed into a Woodland Home for a Family in Asturias
Here: A Chic and Stylish Contemporary House in London, England
Read also: An Elegant Modern House with Courtyards and Pool Flanked by Stone Walls in Porto, Portugal
Next: A Spectacular and Elegant Contemporary House Overlooking the St. Lawrence River of Quebec












