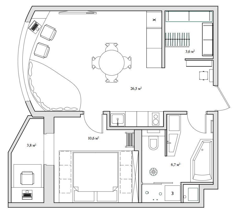
20/20 Images A Small Industrial Apartment with Exposed Brick, Metal and Wood in Moscow Oblast, Russia by Studio Odnushechka (20)