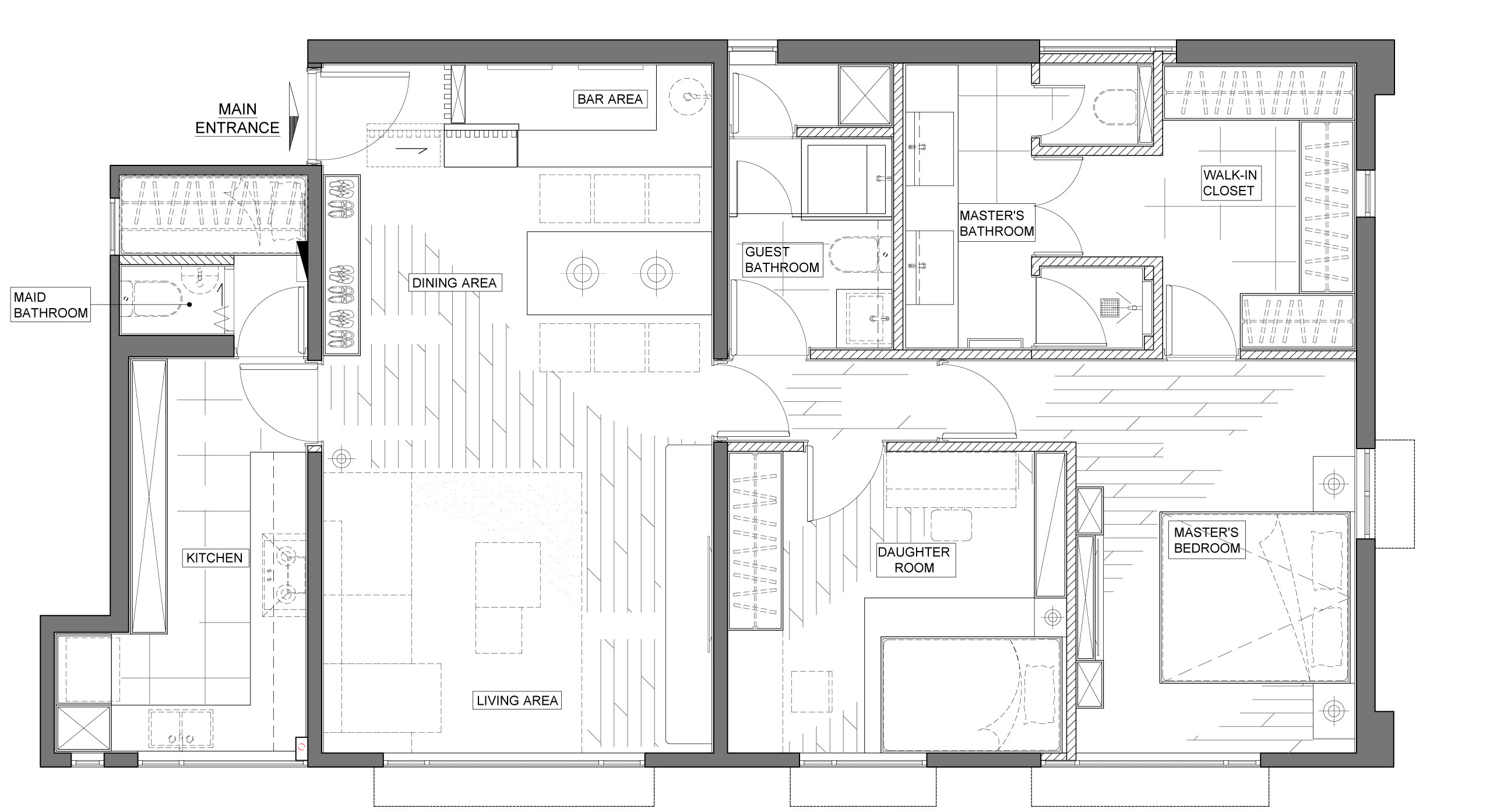
11/11 Images A Striking Contemporary Home with Stylish Interiors in Happy Valley by Millimeter Interior Design (11)